| 価格 | 3,298万円 ![]() |
||||||
|---|---|---|---|---|---|---|---|
| 所在地 | 神奈川県横浜市旭区中沢1-9-43
この地域周辺の物件を見る |
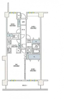
専有面積 | 62.85u | 間取り | 3LDK (LDK11.9/洋室6/洋室6/洋室4) | ||
| 交通 | 相鉄本線 二俣川/徒歩12分
|
管理費等 | 17,600円 | 修繕積立金 | 15,650円 | 所在階/階数 | 7階/地上7階建 | 築年月 | 1992年10月築 | バルコニー面積 | 8.83m² |
電話をかける(携帯・PHS可)
0120-033-223
「ホームページを見た」とお伝え下さい。
お問い合わせ番号をお伝えください
RHS-c-30450
| 設備・特徴 |
|
|---|---|
| 物件のおすすめ ポイント |
*~*:,_,:*~*:,_,:*~*:,_,:* …╋ 二俣川パーク・ホームズ壱番館 ╋… *~*:,_,:*~*:,_,:*~*:,_,:* .:*:…╋ 交通アクセス ╋…♪.:*:’ 相鉄本線「二俣川」駅徒歩12分 .:*:…╋ 特徴・ポイント ╋…♪.:*:’゜ 新耐震基準マンション 宅配ボックス完備 オートロック完備 ペット飼育可(規約有) 最上階・南西向き 陽当り・眺望良好 エアコン設置(1台) アフターサービス保証 所在地:横浜市旭区中沢1-9-43 専有面積:62.85m2 バルコニー面積:8.83m2 部屋数・間取り:3LDK 築年月:平成4年10月 土地権利:所有権 構造:RC造地上7階建 所在階:7階部分 総戸数:30戸 管理会社:三井不動産レジデンシャルサービス(株) 管理形態:全部委託(日勤) 管理費:17,600円/月 修繕積立金:15,650円/月 分譲会社:三井不動産(株) 施工会社:工藤建設(株) ペット飼育:可(規約有) 駐車場:17,000円〜19,000円/月 駐輪場:無償 現況:空室 引渡:相談 :*:…╋ 新規内装リノベーション内容 ╋…♪:* 玄関人感センサー設置 玄関収納交換 洗面化粧台交換 トイレ交換 キッチン交換 クロス張替 建具交換 照明器具設置 フローリング張替 フロアタイル張替 リビングエアコン設置 給湯器交換 ハウスクリーニング ※2026年1月完成済 |
| 採光面 | 南西 | 取引態様 | 仲介 |
|---|---|---|---|
| 現況 | 空家 | 引渡し | 相談 |
| 総戸数 | 30戸 | 構造 | RC造 |
| テラス面積 | - | 専用庭面積 | - |
| 駐車場 | 有:17,000円/月 | 駐輪場 | 有 |
| 建物権利 | 区分所有 | 土地権利 | 所有権の共有 |
| 用途地域 | 第一種住居地域 - - | 管理態様 | 管理形態:委託(通勤) 管理組合:あり 管理会社:三井不動産レジデンシャルサービス |
| 小学校区 | 横浜市立中沢小学校 (神奈川県横浜市旭区) この学区の他の物件を見る |
中学校区 | 旭中学校 (神奈川県横浜市旭区) この学区の他の物件を見る |
| 情報更新日 | 2026年03月25日 | 次回更新日 | 2026年04月08日 |
電話をかける(携帯・PHS可)
0120-033-223
「ホームページを見た」とお伝え下さい。
お問い合わせ番号をお伝えください
RHS-c-30450
| 年利率 | % |
||
|---|---|---|---|
| ボーナス払い | 返済年数 | ||
| 頭金 | 直接入力する | 万円 | |

毎月のご返済額 |
ボーナス(×年2回) |
物件価格3,298万円 |
電話でお問い合わせ
ゼロネクスト
|
電話をかける 0120-033-223 ※「ホームページを見た」とお伝えください。 |
お問い合わせ番号をお伝えください RHS-c-30450 |
|---|
【仲介手数料約115万円が無料になる物件です】
マンション購入時の諸費用を節約する事が可能です。
新規内装リノベーション済の綺麗な室内。オートロック・宅配ボックス完備。最上階南西向きにつき陽当り・眺望良好です。