【仲介手数料無料】ザ・クレストシティパークコート 8,290万円 神奈川県川崎市中原区上小田中3-29-2の中古マンション||分譲マンション情報|住まいネクスト株式会社

仲介手数料無料の中古マンション専門 ゼロネクストへのお問い合わせ
  • ゼロネクストの不動産売却実績
  • ゼロネクストが仲介手数料無料な理由
  • 住まいネクスト株式会社について
  • ログイン
  • 会員登録
  • ゼロネクストへメールでお問い合わせ
>
>
中古マンション > 川崎市中原区 > JR南武線 >
ザ・クレストシティパークコート

中古マンション

ザ・クレストシティパークコート お気に入り
価格 8,290万円 ローンシミュレーション
所在地 神奈川県川崎市中原区上小田中3-29-2
この地域周辺の物件を見る
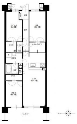
専有面積 84.44u 間取り 2SLDK (LDK16.7/洋室6.6/洋室5.9/S6.6)
交通
JR南武線 武蔵新城/徒歩5分
管理費等 16,970円 修繕積立金 23,470円
所在階/階数 6階/地上10階 地下1階建 築年月 2005年2月築 バルコニー面積 11.4m²
ここがおすすめ

【仲介手数料約280万円が無料になる物件です】
マンション購入時の諸費用を節約する事が可能です。
新規内装リノベーションの綺麗な室内。6階部分西向き・眺望良好。総戸数638戸のビッグコミュニティ・ペットと暮らせます。


  • 現地外観写真 -
  • 間取り図 -
  • エントランス オートロック
  • ロビー -
  • その他共用部 宅配ボックス・メールボックス
  • 住戸からの眺望写真 -
お問い合わせ、資料請求、見学のお申し込みはこちらから

電話をかける(携帯・PHS可)
0120-033-223
「ホームページを見た」とお伝え下さい。

お問い合わせ番号をお伝えください
RHS-c-30387

内見予約
お問合せ
内見予約・お問い合わせ

セールスポイント

設備・特徴
  • 仲介手数料無料
  • バイク置き場
  • ペット飼育相談可
  • アフターサービス保証付
  • 新耐震基準適合物件
  • フラット35適合物件
  • CATV
  • 駐輪場
  • 駐車場
  • 宅配ボックス
  • BS対応
  • 防犯カメラ
  • オートロック
  • エレベーター
  • 洗浄便座付トイレ
  • 室内洗濯機置場
  • 浴室換気乾燥機付
  • TVモニタ付インターホン
  • 給湯器(追焚機能付)
  • 食器洗浄乾燥機付
  • フローリング
  • 洗面化粧台
  • 浄水器一体型水栓
  • ウォークインクローゼット
物件のおすすめ
ポイント
*~*:,_,:*~*:,_,:*~*:,_,:*
…╋ ザ・クレストシティパークコート ╋…
*~*:,_,:*~*:,_,:*~*:,_,:*

.:*:…╋ 交通アクセス ╋…♪.:*:’ 

JR南武線「武蔵新城」駅徒歩5分

.:*:…╋ 特徴・ポイント ╋…♪.:*:’゜

フラット35適合
新耐震基準マンション
エレベーター完備
オートロック完備
宅配ボックス完備
防犯カメラ完備
ペット飼育可(規約有)
6階部分・眺望良好
収納豊富なWIC有
各室収納スペース
浄水器付キッチン
食器洗浄乾燥機付
浴室換気乾燥機付
アフターサービス保証

所在地:川崎市中原区上小田中3-29-2
専有面積:84.44m2
バルコニー面積:11.40m2
部屋数・間取り:2SLDK
築年月:2005年2月
土地権利:所有権
構造:RC造地下1階付地上10階建
所在階:6階部分
総戸数:638戸
管理会社:大和ライフネクスト(株)
管理形態:全部委託(常駐)
管理費:16,970円/月
修繕積立金:23,470円/月
分譲会社:(株)ゴールドクレスト
施工会社:五洋建設(株)
ペット飼育:可(規約有)
駐車場:7,000円〜20,000円/月
バイク置場:2,000円〜3,000円/月
駐輪場:150円〜250円/月
現況:空室
引渡:相談

:*:…╋ 新規内装リノベーション内容 ╋…♪:*

システムキッチン交換
ユニットバス交換
洗面台交換
トイレ交換
全室クロス張替
全フローリング張替
全建具交換
CF張替
下足入れ交換
洗濯水栓器具交換
防水パン交換
スイッチパネル設置
ダウンライト設置
照明器具設置
玄関人感センサー設置
※2026年4月完成予定

物件概要

採光面 西 取引態様 仲介
現況 空家 引渡し 相談
総戸数 638戸 構造 RC造
テラス面積 - 専用庭面積 -
駐車場 有:7,000円/月 駐輪場 有:150円/月
建物権利 区分所有 土地権利 所有権の共有
用途地域 第一種中高層住居専用地域 - - 管理態様 管理形態:委託(常駐)
管理組合:あり
管理会社:大和ライフネクスト
小学校区 川崎市立大谷戸小学校
(神奈川県川崎市中原区)
この学区の他の物件を見る
中学校区 西中原中学校
(神奈川県川崎市中原区)
この学区の他の物件を見る
情報更新日 2026年03月18日 次回更新日 2026年04月01日
※各種情報と差異がある場合は現況優先となります
※物件情報の学区情報について
当サイト物件情報に記載されております通学区域(学区)情報は、国土数値情報ダウンロードサービスが提供する小学校区データ【2016年度】及び中学校区データ【2016年度】を元に加工したものですので、記載情報が現在の学区域と異なる場合がございます。
国土数値情報ダウンロードサービスのWEBサイト上で記述通り、データは必ずしも正確とは言えません。また、通学区域(学区)は毎年見直しの対象となりますので、そちらを踏まえ学区情報は参考としてご活用下さい。
お問い合わせ、資料請求、見学のお申し込みはこちらから

電話をかける(携帯・PHS可)
0120-033-223
「ホームページを見た」とお伝え下さい。

お問い合わせ番号をお伝えください
RHS-c-30387

内見予約
お問合せ
内見予約・お問い合わせ

この物件でローンシミュレーションする

年利率
ボーナス払い 返済年数
頭金 直接入力する 万円

毎月のご返済額

ボーナス(×年2回)

物件価格

8,290万円
※返済金額はあくまでも目安です。
  • こちらの物件を見たお客様はこんな物件もチェックしています。
  • お気に入り物件

同じ価格帯の物件はこちら

広さの近い物件はこちら

同じ小学校区の物件はこちら

電話でお問い合わせ
ゼロネクスト

電話をかける

0120-033-223

※「ホームページを見た」とお伝えください。
お問い合わせ番号をお伝えください
RHS-c-30387

お問い合わせ

お問い合わせ内容
お問合せ内容必須
【備考欄】
詳細な見学ご希望時間、ご質問、ご希望条件などがございましたらお聞かせ下さい。
(2000文字以内)
お客様情報
お名前必須
連絡先必須 メールアドレス

※ご記入いただいたメールアドレス宛てに、お問合せ内容の確認メールをお送りいたします。
※Yahoo!メールなどのフリーメールをご利用の場合、迷惑メールフォルダに入る場合があります。
 迷惑メールのフォルダ・設定等をご確認下さい。
電話番号
FAX(任意)
※ご入力いただいたお客さまの個人情報は、「個人情報のお取り扱いについて」に基づき適正に取り扱います。
必ずお読みになり、同意の上お問い合わせください。

お気軽にお問い合わせください

0120-033-223
物件番号 RHS-c-30387
※「ホームページを見た」
とお伝え下さい。

PAGE TOP

住まいネクスト株式会社 住まいネクスト株式会社ロゴ

〒143-0016

東京都 大田区大森北1-1-5 YK-16ビル 6F

JR京浜東北線「大森」駅北口出口から徒歩1分

※物件内覧の際は、現地でのお待ち合わせ・解散が可能です。
お電話でのお問い合わせはコチラ 03-6423-0433 営業時間 10:00〜20:30 定休日:水曜日・年末年始・夏季休暇

※ご案内中は電話に出られないこともございます。
   その際は折り返しお電話させて頂きます。