| 価格 | 6,998万円 ![]() |
||||||
|---|---|---|---|---|---|---|---|
| 所在地 | 東京都大田区蒲田1-7-15
この地域周辺の物件を見る |
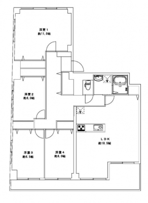
専有面積 | 116.93u | 間取り | 4LDK (LDK18.5/洋室11/洋室6.5/洋室6/洋室6) | ||
| 交通 | 京急本線 梅屋敷/徒歩9分
JR京浜東北・根岸線 蒲田/徒歩12分 東急池上線 蒲田/徒歩12分 |
管理費等 | - | 修繕積立金 | 31,223円 | 所在階/階数 | 1階/地上4階建 | 築年月 | 1981年6月築 | バルコニー面積 | - |
電話をかける(携帯・PHS可)
0120-033-223
「ホームページを見た」とお伝え下さい。
お問い合わせ番号をお伝えください
RHS-c-30362
| 設備・特徴 |
|
|---|---|
| 物件のおすすめ ポイント |
*~*:,_,:*~*:,_,:*~*:,_,:* …╋ クラウンコーポラス ╋… *~*:,_,:*~*:,_,:*~*:,_,:* .:*:…╋ 交通アクセス ╋…♪.:*:’ 京急本線「梅屋敷」駅徒歩9分 京急本線「京急蒲田」駅徒歩11分 JR京浜東北線「蒲田」駅徒歩12分 東急池上線「蒲田」駅徒歩12分 東急多摩川線「蒲田」駅徒歩12分 .:*:…╋ 特徴・ポイント ╋…♪.:*:’゜ 1階部分・南西角部屋 浄水器付キッチン 浴室換気乾燥機付 各室収納スペース 所在地:東京都大田区蒲田1-7-15 専有面積:116.93m2 バルコニー面積:不明 部屋数・間取り:4LDK 築年月:昭和56年6月 土地権利:所有権 構造:RC造地上4階建 所在階:1階部分 総戸数:15戸 管理形態:自主管理 管理費:無 修繕積立金:31,233円/月 分譲会社:創建企画(株) 施工会社:柴田組 ペット飼育:不可 事務所利用:不可 現況:空室 引渡:相談 :*:…╋ 新規内装リフォーム内容 ╋…♪:* システムキッチン交換 ユニットバス交換 トイレ交換 洗面化粧台交換 フローリング張替 フロアタイル張替 クロス張替 建具交換 洗濯防水パン交換 給湯器交換 TVモニター付インターフォン ダウンライト設置 スイッチパネル交換 配管更新 火災報知器設置 カーテンレール設置 ※2026年5月30日完成予定 |
| 採光面 | 南西 | 取引態様 | 仲介 |
|---|---|---|---|
| 現況 | 空家 | 引渡し | 相談 |
| 総戸数 | 15戸 | 構造 | RC造 |
| テラス面積 | - | 専用庭面積 | - |
| 駐車場 | なし | 駐輪場 | 無 |
| 建物権利 | 区分所有 | 土地権利 | 所有権の共有 |
| 用途地域 | 準工業地域 近隣商業地域 - | 管理態様 | 管理形態:自主管理 管理組合:あり 管理会社:- |
| 小学校区 | 大田区立蒲田小学校 (東京都大田区) この学区の他の物件を見る |
中学校区 | 蒲田中学校 (東京都大田区) この学区の他の物件を見る |
| 情報更新日 | 2026年03月16日 | 次回更新日 | 2026年03月30日 |
電話をかける(携帯・PHS可)
0120-033-223
「ホームページを見た」とお伝え下さい。
お問い合わせ番号をお伝えください
RHS-c-30362
| 年利率 | % |
||
|---|---|---|---|
| ボーナス払い | 返済年数 | ||
| 頭金 | 直接入力する | 万円 | |

毎月のご返済額 |
ボーナス(×年2回) |
物件価格6,998万円 |
電話でお問い合わせ
ゼロネクスト
|
電話をかける 0120-033-223 ※「ホームページを見た」とお伝えください。 |
お問い合わせ番号をお伝えください RHS-c-30362 |
|---|
【仲介手数料約237万円が無料になる物件です】
マンション購入時の諸費用を節約する事が可能です。
新規内装リフォームの綺麗な室内。南西角部屋につき陽当り・通風良好。「梅屋敷駅」徒歩9分「蒲田駅」徒歩圏です。