【仲介手数料無料】レクセル新子安 4,598万円 神奈川県横浜市神奈川区子安通3-378の中古マンション||分譲マンション情報|住まいネクスト株式会社

仲介手数料無料の中古マンション専門 ゼロネクストへのお問い合わせ
  • ゼロネクストの不動産売却実績
  • ゼロネクストが仲介手数料無料な理由
  • 住まいネクスト株式会社について
  • ログイン
  • 会員登録
  • ゼロネクストへメールでお問い合わせ

中古マンション

レクセル新子安 お気に入り
価格 4,598万円 ローンシミュレーション
所在地 神奈川県横浜市神奈川区子安通3-378
この地域周辺の物件を見る
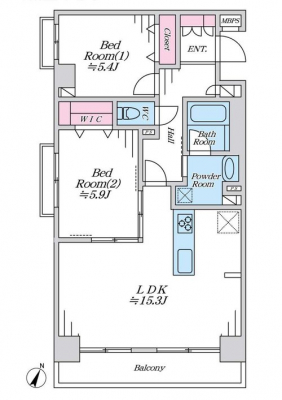
専有面積 63.54u 間取り 2LDK (LDK15.3/洋室5.9/洋室5.4)
交通
京急本線 京急新子安/徒歩9分
JR京浜東北・根岸線 新子安/徒歩9分
管理費等 9,800円 修繕積立金 22,100円
所在階/階数 9階/地上11階建 築年月 1993年9月築 バルコニー面積 7.8m²
ここがおすすめ

【仲介手数料約158万円が無料になる物件です】
マンション購入時の諸費用を節約する事が可能です。
新規内装リノベーションの綺麗な室内。9階南西角部屋につき陽当り・眺望良好。宅配ボックス完備・「新子安駅」平坦徒歩9分です。


  • 現地外観写真 -
  • 間取り図 -
  • エントランス -
お問い合わせ、資料請求、見学のお申し込みはこちらから

電話をかける(携帯・PHS可)
0120-033-223
「ホームページを見た」とお伝え下さい。

お問い合わせ番号をお伝えください
RHS-c-30271

内見予約
お問合せ
内見予約・お問い合わせ

セールスポイント

設備・特徴
  • 仲介手数料無料
  • バイク置き場
  • アフターサービス保証付
  • 新耐震基準適合物件
  • 駐輪場
  • 駐車場
  • 宅配ボックス
  • 角部屋
  • オートロック
  • エレベーター
  • 洗浄便座付トイレ
  • 室内洗濯機置場
  • 浴室換気乾燥機付
  • 給湯器(追焚機能付)
  • 食器洗浄乾燥機付
  • フローリング
  • 洗面化粧台
  • 浄水器一体型水栓
  • ウォークインクローゼット
物件のおすすめ
ポイント
*~*:,_,:*~*:,_,:*~*
…╋ レクセル新子安 ╋…
*~*:,_,:*~*:,_,:*~*

.:*:…╋ 交通アクセス ╋…♪.:*:’ 

京急本線「京急新子安」駅徒歩9分
JR京浜東北線「新子安」駅徒歩9分

.:*:…╋ 特徴・ポイント ╋…♪.:*:’゜

オートロック完備
宅配ボックス完備
エレベーター
9階部分・南西角部屋
陽当り・眺望良好
収納豊富なWIC有
浄水器付キッチン
食器洗浄乾燥機付
浴室換気乾燥機付
アフターサービス保証

所在地:横浜市神奈川区子安通3-378
専有面積:63.54m2
バルコニー面積:7.80m2
部屋数・間取り:2LDK
築年月:平成5年9月
土地権利:所有権
構造:SRC造地上11階建
所在階:9階部分
総戸数:100戸
管理会社:大和ライフネクスト(株)
管理形態:全部委託(日勤)
管理費:9,800円/月
修繕積立金:22,100円/月
分譲会社:扶桑レクセル(株)
施工会社:真柄建設(株)
ペット飼育:不可
駐車場:20,000円/月
バイク置場:600円〜1,200円/月
駐輪場:200円/月
現況:空室
引渡:相談

:*:…╋ 新規内装リノベーション内容 ╋…♪:*

フローリング張替
建具交換
配管更新 (追いだき管)
給湯器交換
システムキッチン交換
(食洗機・浄水機能付)
ユニットバス交換
(追いだき機能・浴室換気乾燥暖房機付)
洗面化粧台交換
トイレ交換 (洗浄機能付)
全室クロス張替
塩ビタイル新規施工
(洗面、トイレ、玄関土間)
照明器具設置
※2026年4月完成予定

物件概要

採光面 南西 取引態様 仲介
現況 空家 引渡し 相談
総戸数 100戸 構造 SRC造
テラス面積 - 専用庭面積 -
駐車場 有:20,000円/月 駐輪場 有:200円/月
建物権利 区分所有 土地権利 所有権の共有
用途地域 商業地域 - - 管理態様 管理形態:委託(通勤)
管理組合:あり
管理会社:大和ライフネクスト
小学校区 横浜市立子安小学校
(神奈川県横浜市神奈川区)
この学区の他の物件を見る
中学校区 浦島丘中学校
(神奈川県横浜市神奈川区)
この学区の他の物件を見る
情報更新日 2026年03月08日 次回更新日 2026年03月22日
※各種情報と差異がある場合は現況優先となります
※物件情報の学区情報について
当サイト物件情報に記載されております通学区域(学区)情報は、国土数値情報ダウンロードサービスが提供する小学校区データ【2016年度】及び中学校区データ【2016年度】を元に加工したものですので、記載情報が現在の学区域と異なる場合がございます。
国土数値情報ダウンロードサービスのWEBサイト上で記述通り、データは必ずしも正確とは言えません。また、通学区域(学区)は毎年見直しの対象となりますので、そちらを踏まえ学区情報は参考としてご活用下さい。
お問い合わせ、資料請求、見学のお申し込みはこちらから

電話をかける(携帯・PHS可)
0120-033-223
「ホームページを見た」とお伝え下さい。

お問い合わせ番号をお伝えください
RHS-c-30271

内見予約
お問合せ
内見予約・お問い合わせ

この物件でローンシミュレーションする

年利率
ボーナス払い 返済年数
頭金 直接入力する 万円

毎月のご返済額

ボーナス(×年2回)

物件価格

4,598万円
※返済金額はあくまでも目安です。
  • こちらの物件を見たお客様はこんな物件もチェックしています。
  • お気に入り物件

同じ価格帯の物件はこちら

広さの近い物件はこちら

同じ小学校区の物件はこちら

電話でお問い合わせ
ゼロネクスト

電話をかける

0120-033-223

※「ホームページを見た」とお伝えください。
お問い合わせ番号をお伝えください
RHS-c-30271

お問い合わせ

お問い合わせ内容
お問合せ内容必須
【備考欄】
詳細な見学ご希望時間、ご質問、ご希望条件などがございましたらお聞かせ下さい。
(2000文字以内)
お客様情報
お名前必須
連絡先必須 メールアドレス

※ご記入いただいたメールアドレス宛てに、お問合せ内容の確認メールをお送りいたします。
※Yahoo!メールなどのフリーメールをご利用の場合、迷惑メールフォルダに入る場合があります。
 迷惑メールのフォルダ・設定等をご確認下さい。
電話番号
FAX(任意)
※ご入力いただいたお客さまの個人情報は、「個人情報のお取り扱いについて」に基づき適正に取り扱います。
必ずお読みになり、同意の上お問い合わせください。

お気軽にお問い合わせください

0120-033-223
物件番号 RHS-c-30271
※「ホームページを見た」
とお伝え下さい。

PAGE TOP

住まいネクスト株式会社 住まいネクスト株式会社ロゴ

〒143-0016

東京都 大田区大森北1-1-5 YK-16ビル 6F

JR京浜東北線「大森」駅北口出口から徒歩1分

※物件内覧の際は、現地でのお待ち合わせ・解散が可能です。
お電話でのお問い合わせはコチラ 03-6423-0433 営業時間 10:00〜20:30 定休日:水曜日・年末年始・夏季休暇

※ご案内中は電話に出られないこともございます。
   その際は折り返しお電話させて頂きます。