| 価格 | 6,499万円値下がり ![]() |
||||||
|---|---|---|---|---|---|---|---|
| 所在地 | 東京都中野区中野3-34-3
この地域周辺の物件を見る |
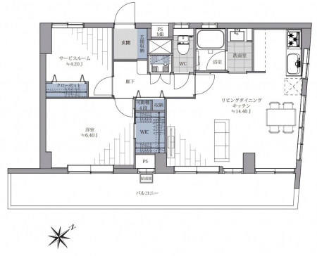
専有面積 | 60.46u | 間取り | 1SLDK (LDK14.4/洋室6.4/S4.2) | ||
| 交通 | JR中央線 中野/徒歩2分
東京メトロ東西線 中野/徒歩2分 東京メトロ丸ノ内線 新中野/徒歩12分 |
管理費等 | 16,360円 | 修繕積立金 | 31,380円 | 所在階/階数 | 6階/地上7階建 | 築年月 | 1968年6月築 | バルコニー面積 | 19.74m² |
電話をかける(携帯・PHS可)
0120-033-223
「ホームページを見た」とお伝え下さい。
お問い合わせ番号をお伝えください
RHS-c-30032
| 設備・特徴 |
|
|---|---|
| 物件のおすすめ ポイント |
*~*:,_,:*~*:,_,:*~* …╋ 中野住研コーポ ╋… *~*:,_,:*~*:,_,:*~* .:*:…╋ 交通アクセス ╋…♪.:*:’ JR中央総武線「中野」駅徒歩2分 東京メトロ東西線「中野」駅徒歩2分 東京メトロ丸ノ内線「新中野」駅徒歩12分 .:*:…╋ 特徴・ポイント ╋…♪.:*:’゜ オートロック完備 宅配ボックス完備 エレベーター完備 6階部分・角部屋 収納豊富なWIC有 浄水器付キッチン 浴室換気乾燥機付 所在地:東京都中野区中野3-34-3 専有面積:60.46m2 バルコニー面積:19.74m2 部屋数・間取り:1SLDK 築年月:昭和43年6月 土地権利:所有権 構造:RC造地上7階建 所在階:6階部分 総戸数:61戸 管理会社:(株)秀栄興産 管理形態:全部委託(日勤) 管理費:16,360円/月 修繕積立金:31,380円/月 施工会社:西松建設(株) ペット飼育:不可 駐輪場:12,000円/年 現況:空室 引渡:相談 :*:…╋ 新規内装リノベーション内容 ╋…♪:* フローリング新規貼替 ユニットバス新規交換 洗面化粧台新規交換 トイレ新規交換 システムキッチン新規交換 壁・天井クロス新規交換 建具・玄関収納新規交換 給湯器新規交換 洗濯水栓・防水パン新規交換 給排水管新規交換(一部既存) ※2026年4月完成 |
| 採光面 | 東南 | 取引態様 | 仲介 |
|---|---|---|---|
| 現況 | 空家 | 引渡し | 相談 |
| 総戸数 | 61戸 | 構造 | RC造 |
| テラス面積 | - | 専用庭面積 | - |
| 駐車場 | なし | 駐輪場 | 有:1,000円/月 |
| 建物権利 | 区分所有 | 土地権利 | 所有権の共有 |
| 用途地域 | - - - | 管理態様 | 管理形態:委託(通勤) 管理組合:あり 管理会社:秀栄興産 |
| 小学校区 | 中野区立桃花小学校 (東京都中野区) この学区の他の物件を見る |
中学校区 | 中野中学校 (東京都中野区) この学区の他の物件を見る |
| 情報更新日 | 2026年04月18日 | 次回更新日 | 2026年05月02日 |
電話をかける(携帯・PHS可)
0120-033-223
「ホームページを見た」とお伝え下さい。
お問い合わせ番号をお伝えください
RHS-c-30032
| 年利率 | % |
||
|---|---|---|---|
| ボーナス払い | 返済年数 | ||
| 頭金 | 直接入力する | 万円 | |

毎月のご返済額 |
ボーナス(×年2回) |
物件価格6,499万円 |
電話でお問い合わせ
ゼロネクスト
|
電話をかける 0120-033-223 ※「ホームページを見た」とお伝えください。 |
お問い合わせ番号をお伝えください RHS-c-30032 |
|---|
【仲介手数料約221万円が無料になる物件です】
マンション購入時の諸費用を節約する事が可能です。
新規内装リノベーションの綺麗な室内。宅配ボックス完備・複数路線利用可能な「中野駅」徒歩2分の好立地です。