| 価格 | 7,790万円 ![]() |
||||||
|---|---|---|---|---|---|---|---|
| 所在地 | 東京都墨田区江東橋4-24-6
この地域周辺の物件を見る |
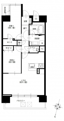
専有面積 | 60.99u | 間取り | 2LDK (LDK15.2/洋室6.1/洋室5) | ||
| 交通 | JR総武線 錦糸町/徒歩6分
JR総武線 亀戸/徒歩10分 東京メトロ半蔵門線 住吉/徒歩12分 |
管理費等 | 15,610円 | 修繕積立金 | 2,400円 | 所在階/階数 | 8階/地上13階建 | 築年月 | 1999年10月築 | バルコニー面積 | 8.52m² |
電話をかける(携帯・PHS可)
0120-033-223
「ホームページを見た」とお伝え下さい。
お問い合わせ番号をお伝えください
RHS-c-29797
| 設備・特徴 |
|
|---|---|
| 物件のおすすめ ポイント |
*~*:,_,:*~*:,_,:*~*:,_,:* …╋ エクセルシオール錦糸町 ╋… *~*:,_,:*~*:,_,:*~*:,_,:* .:*:…╋ 交通アクセス ╋…♪.:*:’ JR総武線「錦糸町」駅徒歩6分 東京メトロ半蔵門線「錦糸町」駅徒歩6分 JR総武線「亀戸」駅徒歩10分 東武亀戸線「亀戸」駅徒歩10分 東京メトロ半蔵門線「住吉」駅徒歩12分 都営浅草線「住吉」駅徒歩12分 .:*:…╋ 特徴・ポイント ╋…♪.:*:’゜ フラット35適合 新耐震基準マンション エレベーター完備 オートロック完備 宅配ボックス完備 防犯カメラ完備 ペット飼育可(規約有) 8階部分・眺望良好 浄水器付キッチン 食器洗浄乾燥機付 浴室換気乾燥機付 収納豊富なWIC有 アフターサービス保証 所在地:東京都墨田区江東橋4-24-6 専有面積:60.99m2 バルコニー面積:8.52m2 部屋数・間取り:2LDK 築年月:1999年10月 土地権利:所有権 構造:SRC造地上13階建 所在階:8階部分 総戸数:57戸 管理会社:(株)サニーライフ 管理形態:全部委託(日勤) 管理費:15,610円/月 修繕積立金:2,400円/月 分譲会社:テイボンホームテック(株) 施工会社:矢作建設工業(株) ペット飼育:不可 駐車場:29,000円/月 バイク置場:1,000円〜3,000円/月 駐輪場:300円〜600円/月 現況:空室 引渡:相談 :*:…╋ 新規内装リノベーション内容 ╋…♪:* 給湯器交換 システムキッチン交換 ユニットバス交換 洗面台交換 トイレ交換 全室クロス張替 全フローリング張替 全建具交換 CF張替 下足入れ交換 洗濯水栓器具交換 防水パン交換 スイッチパネル設置 ダウンライト設置 照明器具設置 玄関人感センサー設置 ※2026年2月完成予定 |
| 採光面 | 北 | 取引態様 | 仲介 |
|---|---|---|---|
| 現況 | 空家 | 引渡し | 相談 |
| 総戸数 | 57戸 | 構造 | SRC造 |
| テラス面積 | - | 専用庭面積 | - |
| 駐車場 | 有:29,000円/月 | 駐輪場 | 有:300円/月 |
| 建物権利 | 区分所有 | 土地権利 | 所有権の共有 |
| 用途地域 | 商業地域 - - | 管理態様 | 管理形態:委託(通勤) 管理組合:あり 管理会社:サニーライフ |
| 小学校区 | 墨田区立錦糸小学校 (東京都墨田区) この学区の他の物件を見る |
中学校区 | 竪川中学校 (東京都墨田区) この学区の他の物件を見る |
| 情報更新日 | 2026年02月04日 | 次回更新日 | 2026年02月18日 |
電話をかける(携帯・PHS可)
0120-033-223
「ホームページを見た」とお伝え下さい。
お問い合わせ番号をお伝えください
RHS-c-29797
| 年利率 | % |
||
|---|---|---|---|
| ボーナス払い | 返済年数 | ||
| 頭金 | 直接入力する | 万円 | |

毎月のご返済額 |
ボーナス(×年2回) |
物件価格7,790万円 |
電話でお問い合わせ
ゼロネクスト
|
電話をかける 0120-033-223 ※「ホームページを見た」とお伝えください。 |
お問い合わせ番号をお伝えください RHS-c-29797 |
|---|
【仲介手数料約263万円が無料になる物件です】
マンション購入時の諸費用を節約する事が可能です。
新規内装リノベーションの綺麗な室内。「錦糸町」駅より徒歩6分の好立地・「亀戸駅」「住吉駅」まで徒歩圏内でアクセス良好です。