【仲介手数料無料】自由が丘第5コーポ 成約済 東京都世田谷区奥沢6-20-4の中古マンション||分譲マンション情報|住まいネクスト株式会社

仲介手数料無料の中古マンション専門 ゼロネクストへのお問い合わせ
  • ゼロネクストの不動産売却実績
  • ゼロネクストが仲介手数料無料な理由
  • 住まいネクスト株式会社について
  • ログイン
  • 会員登録
  • ゼロネクストへメールでお問い合わせ

中古マンション

自由が丘第5コーポ お気に入り
価格 成約済 ローンシミュレーション
所在地 東京都世田谷区奥沢6-20-4
この地域周辺の物件を見る
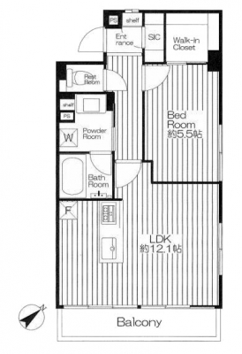
専有面積 44.84u 間取り 1LDK (LDK12.1/洋室5.5)
交通
東急大井町線 九品仏/徒歩5分
東急東横線 自由が丘/徒歩8分
東急目黒線 奥沢/徒歩8分
管理費等 13,000円 修繕積立金 12,560円
所在階/階数 4階/地上6階建 築年月 1966年8月築 バルコニー面積 5.26m²
ここがおすすめ

【仲介手数料が無料になる物件です】
マンション購入時の諸費用を節約する事が可能です。
新規内装リノベーション済の綺麗な室内。「奥沢駅」徒歩5分「自由が丘駅」「奥沢駅」徒歩8分・ペットと暮らせます。


  • 現地外観写真 -
  • 間取り図 -
  • エントランス -
  • その他共用部 -
お問い合わせ、資料請求、見学のお申し込みはこちらから

電話をかける(携帯・PHS可)
0120-033-223
「ホームページを見た」とお伝え下さい。

お問い合わせ番号をお伝えください
RHS-c-29637

内見予約
お問合せ
内見予約・お問い合わせ

セールスポイント

設備・特徴
  • 仲介手数料無料
  • ペット飼育相談可
  • 洗浄便座付トイレ
  • 室内洗濯機置場
  • 浴室換気乾燥機付
  • TVモニタ付インターホン
  • 給湯器(追焚機能付)
  • フローリング
  • 洗面化粧台
  • ウォークインクローゼット
  • シューズインクローゼット
物件のおすすめ
ポイント
*~*:,_,:*~*:,_,:*~*
…╋ 自由が丘第5コーポ ╋…
*~*:,_,:*~*:,_,:*~*

.:*:…╋ 交通アクセス ╋…♪.:*:’ 

東急大井町線「九品仏」駅徒歩5分
東急東横線「自由が丘」駅徒歩8分
東急大井町線「自由が丘」駅徒歩8分
東急目黒線「奥沢」駅徒歩8分

.:*:…╋ 特徴・ポイント ╋…♪.:*:’゜

4階部分・角部屋
陽当り・眺望良好
玄関SIC収納有
収納豊富なWIC有
エアコン設置
浴室換気乾燥機付
ペット飼育可(規約有)

所在地:東京都世田谷区奥沢6-20-4
専有面積:44.84m2
バルコニー面積:5.26m2
部屋数・間取り:1LDK
築年月:昭和41年8月
土地権利:所有権
構造:RC造地上6階建
所在階:4階部分
総戸数:50戸
管理会社:(株)東急コミュニティー
管理形態:全部委託(巡回)
管理費:13,000円/月
修繕積立金:12,560円/月
分譲会社:日本建設協会
施工会社:石原建設
ペット飼育:可(規約有)
現況:空室
引渡:相談

:*:…╋ 新規内装リノベーション内容 ╋…♪:*

システムキッチン交換
ユニットバス交換
洗面化粧台交換
トイレ交換
フローリング張替
建具交換
ウォークインクローゼット
照明器具設置
エアコン設置
給湯器交換
クロス張替
シューズインクローゼット
洗濯防水パン交換
給排水管更新
網戸張替
TVモニター付インターフォン
フロアタイル張替
※2025年12月完成済

物件概要

採光面 東南 取引態様 仲介
現況 空家 引渡し 相談
総戸数 50戸 構造 RC造
テラス面積 - 専用庭面積 -
駐車場 なし 駐輪場 -
建物権利 区分所有 土地権利 所有権の共有
用途地域 - - - 管理態様 管理形態:委託(巡回)
管理組合:あり
管理会社:東急コミュニティー
小学校区 世田谷区立八幡小学校
(東京都世田谷区)
この学区の他の物件を見る
中学校区 八幡中学校
(東京都世田谷区)
この学区の他の物件を見る
情報更新日 2026年03月22日 次回更新日 2026年04月05日
※各種情報と差異がある場合は現況優先となります
※物件情報の学区情報について
当サイト物件情報に記載されております通学区域(学区)情報は、国土数値情報ダウンロードサービスが提供する小学校区データ【2016年度】及び中学校区データ【2016年度】を元に加工したものですので、記載情報が現在の学区域と異なる場合がございます。
国土数値情報ダウンロードサービスのWEBサイト上で記述通り、データは必ずしも正確とは言えません。また、通学区域(学区)は毎年見直しの対象となりますので、そちらを踏まえ学区情報は参考としてご活用下さい。
お問い合わせ、資料請求、見学のお申し込みはこちらから

電話をかける(携帯・PHS可)
0120-033-223
「ホームページを見た」とお伝え下さい。

お問い合わせ番号をお伝えください
RHS-c-29637

内見予約
お問合せ
内見予約・お問い合わせ

この物件でローンシミュレーションする

年利率
ボーナス払い 返済年数
頭金 直接入力する 万円

毎月のご返済額

ボーナス(×年2回)

物件価格

成約済
※返済金額はあくまでも目安です。

電話でお問い合わせ
ゼロネクスト

電話をかける

0120-033-223

※「ホームページを見た」とお伝えください。
お問い合わせ番号をお伝えください
RHS-c-29637

お問い合わせ

お問い合わせ内容
お問合せ内容必須
【備考欄】
詳細な見学ご希望時間、ご質問、ご希望条件などがございましたらお聞かせ下さい。
(2000文字以内)
お客様情報
お名前必須
連絡先必須 メールアドレス

※ご記入いただいたメールアドレス宛てに、お問合せ内容の確認メールをお送りいたします。
※Yahoo!メールなどのフリーメールをご利用の場合、迷惑メールフォルダに入る場合があります。
 迷惑メールのフォルダ・設定等をご確認下さい。
電話番号
FAX(任意)
※ご入力いただいたお客さまの個人情報は、「個人情報のお取り扱いについて」に基づき適正に取り扱います。
必ずお読みになり、同意の上お問い合わせください。

お気軽にお問い合わせください

0120-033-223
物件番号 RHS-c-29637
※「ホームページを見た」
とお伝え下さい。

PAGE TOP

住まいネクスト株式会社 住まいネクスト株式会社ロゴ

〒143-0016

東京都 大田区大森北1-1-5 YK-16ビル 6F

JR京浜東北線「大森」駅北口出口から徒歩1分

※物件内覧の際は、現地でのお待ち合わせ・解散が可能です。
お電話でのお問い合わせはコチラ 03-6423-0433 営業時間 10:00〜20:30 定休日:水曜日・年末年始・夏季休暇

※ご案内中は電話に出られないこともございます。
   その際は折り返しお電話させて頂きます。