【仲介手数料無料】ときわ台サンハイツ 1,580万円 東京都板橋区常盤台3-28-12の中古マンション||分譲マンション情報|住まいネクスト株式会社

仲介手数料無料の中古マンション専門 ゼロネクストへのお問い合わせ
  • ゼロネクストの不動産売却実績
  • ゼロネクストが仲介手数料無料な理由
  • 住まいネクスト株式会社について
  • ログイン
  • 会員登録
  • ゼロネクストへメールでお問い合わせ

中古マンション

ときわ台サンハイツ お気に入り
価格 1,580万円値下がり ローンシミュレーション
所在地 東京都板橋区常盤台3-28-12
この地域周辺の物件を見る
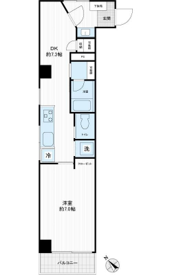
専有面積 36.18u 間取り 1DK (DK7.3/洋室7)
交通
東武東上線 ときわ台/徒歩8分
東武東上線 上板橋/徒歩9分
東武東上線 中板橋/徒歩20分
管理費等 5,000円 修繕積立金 10,000円
所在階/階数 3階/地上7階建 築年月 1970年10月築 バルコニー面積 -
ここがおすすめ

【仲介手数料約59万円が無料になる物件です】
マンション購入時の諸費用を節約する事が可能です。
新規内装リノベーション済の綺麗な室内。「ときわ台駅」徒歩8分・都心へのアクセス良好。アフターサービス保証付きです。


  • 現地外観写真 -
  • 間取り図 -
  • エントランス -
お問い合わせ、資料請求、見学のお申し込みはこちらから

電話をかける(携帯・PHS可)
0120-033-223
「ホームページを見た」とお伝え下さい。

お問い合わせ番号をお伝えください
RHS-c-29611

内見予約
お問合せ
内見予約・お問い合わせ

セールスポイント

設備・特徴
  • 仲介手数料無料
  • ペット飼育不可
  • アフターサービス保証付
  • 駐輪場
  • 駐車場
  • 角部屋
  • 洗浄便座付トイレ
  • 室内洗濯機置場
  • 浴室換気乾燥機付
  • フローリング
  • 洗面化粧台
  • 浄水器一体型水栓
物件のおすすめ
ポイント
*~*:,_,:*~*:,_,:*~*
…╋ ときわ台サンハイツ ╋…
*~*:,_,:*~*:,_,:*~*

.:*:…╋ 交通アクセス ╋…♪.:*:’ 

東武東上線「ときわ台」駅徒歩8分
東武東上線「上板橋」駅徒歩9分
東武東上線「中板橋」駅徒歩20分

.:*:…╋ 特徴・ポイント ╋…♪.:*:’゜

3階部分・南西角部屋
浄水器付キッチン
浴室換気乾燥機付
アフターサービス保証

所在地:東京都板橋区常盤台3-28-12
専有面積:36.18m2
バルコニー面積:不明
部屋数・間取り:1DK
築年月:昭和45年10月
土地権利:所有権
構造:SRC造地上7階建
所在階:3階部分
総戸数:41戸
管理形態:自主管理
管理費:5,000円/月
修繕積立金:10,000円/月
分譲会社:英信産業(株)
施工会社:(株)内野工務店
ペット飼育:不可
駐車場:15,000円/月
駐輪場:無償
現況:空室
引渡:相談

:*:…╋ 新規内装リノベーション内容 ╋…♪:*

玄関収納交換
システムキッチン交換
ユニットバス交換
洗面化粧台交換
洗濯防水パン交換
洗濯水栓交換
トイレ交換
クロス張替
スイッチ交換
建具交換
照明器具設置
フロアタイル張替
フローリング張替
収納造作
給湯器交換
給排水管交換
室内クリーニング
※2026年1月完成済

物件概要

採光面 南西 取引態様 仲介
現況 空家 引渡し 相談
総戸数 41戸 構造 SRC造
テラス面積 - 専用庭面積 -
駐車場 有:15,000円/月 駐輪場
建物権利 区分所有 土地権利 所有権の共有
用途地域 - - - 管理態様 管理形態:自主管理
管理組合:あり
管理会社:-
小学校区 板橋区立中台小学校
(東京都板橋区)
この学区の他の物件を見る
中学校区 上板橋第三中学校
(東京都板橋区)
この学区の他の物件を見る
情報更新日 2026年04月03日 次回更新日 2026年04月17日
※各種情報と差異がある場合は現況優先となります
※物件情報の学区情報について
当サイト物件情報に記載されております通学区域(学区)情報は、国土数値情報ダウンロードサービスが提供する小学校区データ【2016年度】及び中学校区データ【2016年度】を元に加工したものですので、記載情報が現在の学区域と異なる場合がございます。
国土数値情報ダウンロードサービスのWEBサイト上で記述通り、データは必ずしも正確とは言えません。また、通学区域(学区)は毎年見直しの対象となりますので、そちらを踏まえ学区情報は参考としてご活用下さい。
お問い合わせ、資料請求、見学のお申し込みはこちらから

電話をかける(携帯・PHS可)
0120-033-223
「ホームページを見た」とお伝え下さい。

お問い合わせ番号をお伝えください
RHS-c-29611

内見予約
お問合せ
内見予約・お問い合わせ

この物件でローンシミュレーションする

年利率
ボーナス払い 返済年数
頭金 直接入力する 万円

毎月のご返済額

ボーナス(×年2回)

物件価格

1,580万円
※返済金額はあくまでも目安です。
  • こちらの物件を見たお客様はこんな物件もチェックしています。
  • お気に入り物件

同じ価格帯の物件はこちら

広さの近い物件はこちら

同じ小学校区の物件はこちら

電話でお問い合わせ
ゼロネクスト

電話をかける

0120-033-223

※「ホームページを見た」とお伝えください。
お問い合わせ番号をお伝えください
RHS-c-29611

お問い合わせ

お問い合わせ内容
お問合せ内容必須
【備考欄】
詳細な見学ご希望時間、ご質問、ご希望条件などがございましたらお聞かせ下さい。
(2000文字以内)
お客様情報
お名前必須
連絡先必須 メールアドレス

※ご記入いただいたメールアドレス宛てに、お問合せ内容の確認メールをお送りいたします。
※Yahoo!メールなどのフリーメールをご利用の場合、迷惑メールフォルダに入る場合があります。
 迷惑メールのフォルダ・設定等をご確認下さい。
電話番号
FAX(任意)
※ご入力いただいたお客さまの個人情報は、「個人情報のお取り扱いについて」に基づき適正に取り扱います。
必ずお読みになり、同意の上お問い合わせください。

お気軽にお問い合わせください

0120-033-223
物件番号 RHS-c-29611
※「ホームページを見た」
とお伝え下さい。

PAGE TOP

住まいネクスト株式会社 住まいネクスト株式会社ロゴ

〒143-0016

東京都 大田区大森北1-1-5 YK-16ビル 6F

JR京浜東北線「大森」駅北口出口から徒歩1分

※物件内覧の際は、現地でのお待ち合わせ・解散が可能です。
お電話でのお問い合わせはコチラ 03-6423-0433 営業時間 10:00〜20:30 定休日:水曜日・年末年始・夏季休暇

※ご案内中は電話に出られないこともございます。
   その際は折り返しお電話させて頂きます。