| 価格 | 成約済 ![]() |
||||||
|---|---|---|---|---|---|---|---|
| 所在地 | 東京都渋谷区代々木5-14-3
この地域周辺の物件を見る |
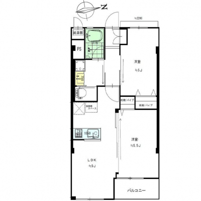
専有面積 | 50.22u | 間取り | 2LDK (LDK9/洋室5.5/洋室5) | ||
| 交通 | 小田急小田原線 代々木八幡/徒歩7分
東京メトロ千代田線 代々木公園/徒歩9分 京王線 初台/徒歩14分 |
管理費等 | - | 修繕積立金 | 15,000円 | 所在階/階数 | 4階/地上5階建 | 築年月 | 1969年3月築 | バルコニー面積 | 11.38m² |
電話をかける(携帯・PHS可)
0120-033-223
「ホームページを見た」とお伝え下さい。
お問い合わせ番号をお伝えください
RHS-c-29567
| 設備・特徴 |
|
|---|---|
| 物件のおすすめ ポイント |
*~*:,_,:*~*:,_,:*~*:,_,:* …╋ 代々木第二コーポラス ╋… *~*:,_,:*~*:,_,:*~*:,_,:* .:*:…╋ 交通アクセス ╋…♪.:*:’ 小田急線「代々木八幡」駅徒歩7分 東京メトロ千代田線「代々木公園」駅徒歩9分 京王線「初台」駅徒歩14分 .:*:…╋ 特徴・ポイント ╋…♪.:*:’゜ 管理良好マンション 大規模修繕工事実施済 長期修繕計画書有 ペット飼育可(規約有) 4階部分・東向き 陽当り・眺望良好 浄水器付キッチン 浴室換気乾燥機付 所在地:東京都渋谷区代々木5-14-3 専有面積:50.22m2 バルコニー面積:11.38m2 部屋数・間取り:2LDK 築年月:昭和44年3月 土地権利:所有権 構造:S造地上5階建 所在階:4階部分 総戸数:39戸 管理形態:自主管理 管理費:無 修繕積立金:15,000円/月 分譲会社:ニチモプレハブ(株) ペット飼育:可(規約有) 事務所利用:不可 駐輪場:500円/年 現況:空室 引渡:相談 :*:…╋ 新規内装リフォーム内容 ╋…♪:* システムキッチン交換 追焚・浴室乾燥機能付ユニットバス交換 温水洗浄機能付トイレ交換 洗面化粧台交換 :全室フローリング張替 玄関・水廻りフロアタイル張替 壁・天井全面張替 (一部アクセントクロス有) 建具全室交換 洗濯防水パン設置 給湯器交換(オートタイプ20号) カラーTVモニター付インターホン交換 ダウンライト新設 スイッチパネル交換 配管更新 火災警報器交換 カーテンレール交換 ※2025年11月14日完成済 |
| 採光面 | 東 | 取引態様 | 仲介 |
|---|---|---|---|
| 現況 | 空家 | 引渡し | 相談 |
| 総戸数 | 39戸 | 構造 | S造 |
| テラス面積 | - | 専用庭面積 | - |
| 駐車場 | 有 | 駐輪場 | 有:41円/月 |
| 建物権利 | 区分所有 | 土地権利 | 所有権の共有 |
| 用途地域 | 第二種低層住居専用地域 準住居地域 - | 管理態様 | 管理形態:自主管理 管理組合:あり 管理会社:- |
| 小学校区 | 渋谷区立幡代小学校 (東京都渋谷区) この学区の他の物件を見る |
中学校区 | 代々木中学校 (東京都渋谷区) この学区の他の物件を見る |
| 情報更新日 | 2026年03月29日 | 次回更新日 | 2026年04月12日 |
電話をかける(携帯・PHS可)
0120-033-223
「ホームページを見た」とお伝え下さい。
お問い合わせ番号をお伝えください
RHS-c-29567
| 年利率 | % |
||
|---|---|---|---|
| ボーナス払い | 返済年数 | ||
| 頭金 | 直接入力する | 万円 | |

毎月のご返済額 |
ボーナス(×年2回) |
物件価格成約済 |
電話でお問い合わせ
ゼロネクスト
|
電話をかける 0120-033-223 ※「ホームページを見た」とお伝えください。 |
お問い合わせ番号をお伝えください RHS-c-29567 |
|---|
【仲介手数料が無料になる物件です】
マンション購入時の諸費用を節約する事が可能です。
新規内装リフォーム済の綺麗な室内。管理体制良好・2023年大規模修繕工事実施済・ペットと暮らせます。