| 価格 | 2,790万円値下がり ![]() |
||||||
|---|---|---|---|---|---|---|---|
| 所在地 | 神奈川県横浜市保土ケ谷区保土ケ谷町1-68-4
この地域周辺の物件を見る |
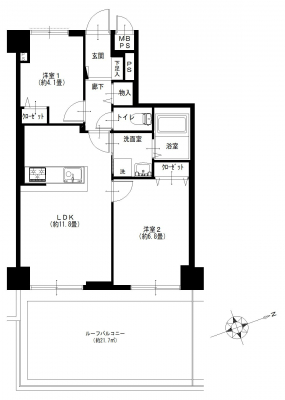
専有面積 | 51.09u | 間取り | 2LDK (LDK11.8/洋室6.8/洋室4.1) | ||
| 交通 | JR横須賀線 保土ヶ谷/徒歩7分
湘南新宿ライン宇須 保土ヶ谷/徒歩7分 |
管理費等 | 13,740円 | 修繕積立金 | 14,100円 | 所在階/階数 | 2階/地上7階建 | 築年月 | 1985年2月築 | バルコニー面積 | 21.7m² |
電話をかける(携帯・PHS可)
0120-033-223
「ホームページを見た」とお伝え下さい。
お問い合わせ番号をお伝えください
RHS-c-29460
| 設備・特徴 |
|
|---|---|
| 物件のおすすめ ポイント |
*~*:,_,:*~*:,_,:*~*:,_,:* …╋ ライオンズマンション保土ヶ谷第2 ╋… *~*:,_,:*~*:,_,:*~*:,_,:* .:*:…╋ 交通アクセス ╋…♪.:*:’ JR横須賀線「保土ヶ谷」駅徒歩7分 湘南新宿ライン「保土ヶ谷」駅徒歩7分 .:*:…╋ 特徴・ポイント ╋…♪.:*:’゜ フラット35適合 新耐震基準マンション エレベーター完備 オートロック完備 防犯カメラ完備 2階部分・南東向き ルーフバルコニー付 浴室換気乾燥機付 インナーサッシ設置 アフターサービス保証 所在地:横浜市保土ヶ谷区保土ヶ谷町1-68-4 専有面積:51.09m2 ルーフバルコニー面積:21.70m2 部屋数・間取り:2LDK 築年月:1985年2月 土地権利:所有権 構造:RC造地上7階建 所在階:2階部分 総戸数:29戸 管理会社:(株)大京アステージ 管理形態:全部委託(日勤) 管理費:13,740円/月 修繕積立金:14,100円/月 分譲会社:大京観光(株) 施工会社:(株)奥村組 ペット飼育:不可 駐輪場:無償 現況:空室 引渡:相談 :*:…╋ 新規内装リノベーション内容 ╋…♪:* 給湯器交換 システムキッチン交換 ユニットバス交換 洗面台交換 トイレ交換 全室クロス張替 全フローリング張替 全建具交換 CF張替 下足入れ交換 洗濯水栓器具交換 防水パン交換 スイッチパネル設置 ダウンライト設置 照明器具設置 玄関人感センサー設置 インナーサッシ設置 ※2025年11月完成済 |
| 採光面 | 東南 | 取引態様 | 仲介 |
|---|---|---|---|
| 現況 | 空家 | 引渡し | 相談 |
| 総戸数 | 29戸 | 構造 | RC造 |
| テラス面積 | - | 専用庭面積 | - |
| 駐車場 | なし | 駐輪場 | 有 |
| 建物権利 | 区分所有 | 土地権利 | 所有権の共有 |
| 用途地域 | 近隣商業地域 - - | 管理態様 | 管理形態:委託(通勤) 管理組合:あり 管理会社:大京アステージ |
| 小学校区 | 横浜市立岩崎小学校 (神奈川県横浜市保土ケ谷区) この学区の他の物件を見る |
中学校区 | 岩崎中学校 (神奈川県横浜市保土ケ谷区) この学区の他の物件を見る |
| 情報更新日 | 2026年03月05日 | 次回更新日 | 2026年03月19日 |
電話をかける(携帯・PHS可)
0120-033-223
「ホームページを見た」とお伝え下さい。
お問い合わせ番号をお伝えください
RHS-c-29460
| 年利率 | % |
||
|---|---|---|---|
| ボーナス払い | 返済年数 | ||
| 頭金 | 直接入力する | 万円 | |

毎月のご返済額 |
ボーナス(×年2回) |
物件価格2,790万円 |
電話でお問い合わせ
ゼロネクスト
|
電話をかける 0120-033-223 ※「ホームページを見た」とお伝えください。 |
お問い合わせ番号をお伝えください RHS-c-29460 |
|---|
【仲介手数料約99万円が無料になる物件です】
マンション購入時の諸費用を節約する事が可能です。
新規内装リノベーション済の綺麗な室内。南東向きルーフバルコニー付・陽当り良好。オートロック付新耐震基準マンションです。