| 価格 | 2,799万円値下がり ![]() |
||||||
|---|---|---|---|---|---|---|---|
| 所在地 | 神奈川県横浜市港北区高田東4-15-9
この地域周辺の物件を見る |
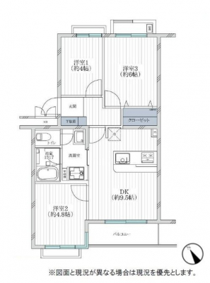
専有面積 | 53.23u | 間取り | 3DK (DK9.5/洋室6/洋室4.8/洋室4) | ||
| 交通 | 横浜市営地下鉄グリーンライン 高田/徒歩5分
東急東横線 綱島/徒歩25分 |
管理費等 | 12,540円 | 修繕積立金 | 11,540円 | 所在階/階数 | 3階/地上4階建 | 築年月 | 1986年3月築 | バルコニー面積 | 5.46m² |
電話をかける(携帯・PHS可)
0120-033-223
「ホームページを見た」とお伝え下さい。
お問い合わせ番号をお伝えください
RHS-c-29323
| 設備・特徴 |
|
|---|---|
| 物件のおすすめ ポイント |
*~*:,_,:*~*:,_,:*~* …╋ 綱島ビューハイツ ╋… *~*:,_,:*~*:,_,:*~* .:*:…╋ 交通アクセス ╋…♪.:*:’ 横浜市営地下鉄「高田」駅徒歩5分 東急東横線「綱島」駅徒歩25分 .:*:…╋ 特徴・ポイント ╋…♪.:*:’゜ 3階部分・南西向き カウンターキッチン 食器洗浄乾燥機付 浴室換気乾燥機付 アフターサービス保証 所在地:横浜市港北区高田東4-15-9 専有面積:53.23m2 バルコニー面積:5.46m2 部屋数・間取り:3DK 築年月:昭和61年3月 土地権利:所有権 構造:RC造地上4階建 所在階:3階部分 総戸数:24戸 管理会社:(株)東急コミュニティー 管理形態:全部委託(巡回) 管理費:12,540円/月 修繕積立金:11,540円/月 分譲会社:帝人殖産(株) 施工会社:(株)熊谷組 ペット飼育:不可 事務所利用:不可 バイク置場:100円/年 駐輪場:100円/年 エレベーター/無 現況:空室 引渡:相談 :*:…╋ 新規内装リノベーション内容 ╋…♪:* 浴室交換 洗面化粧台交換 シャワートイレ一体型交換 システムキッチン交換(食洗機あり) フローリング張替 クロス貼替 フロアタイル貼替(玄関・洗面室・トイレ) 建具交換 カーテンレール交換 網戸張替 洗濯パン交換 照明器具交換 ※2025年11月26日完成済 |
| 採光面 | 南西 | 取引態様 | 仲介 |
|---|---|---|---|
| 現況 | 空家 | 引渡し | 相談 |
| 総戸数 | 24戸 | 構造 | RC造 |
| テラス面積 | - | 専用庭面積 | - |
| 駐車場 | なし | 駐輪場 | 有:8円/月 |
| 建物権利 | 区分所有 | 土地権利 | 所有権の共有 |
| 用途地域 | 第一種住居地域 - - | 管理態様 | 管理形態:委託(巡回) 管理組合:あり 管理会社:東急コミュニティー |
| 小学校区 | 横浜市立高田東小学校 (神奈川県横浜市港北区) この学区の他の物件を見る |
中学校区 | 高田中学校 (神奈川県横浜市港北区) この学区の他の物件を見る |
| 情報更新日 | 2026年03月09日 | 次回更新日 | 2026年03月23日 |
電話をかける(携帯・PHS可)
0120-033-223
「ホームページを見た」とお伝え下さい。
お問い合わせ番号をお伝えください
RHS-c-29323
| 年利率 | % |
||
|---|---|---|---|
| ボーナス払い | 返済年数 | ||
| 頭金 | 直接入力する | 万円 | |

毎月のご返済額 |
ボーナス(×年2回) |
物件価格2,799万円 |
電話でお問い合わせ
ゼロネクスト
|
電話をかける 0120-033-223 ※「ホームページを見た」とお伝えください。 |
お問い合わせ番号をお伝えください RHS-c-29323 |
|---|
【仲介手数料約99万円が無料になる物件です】
マンション購入時の諸費用を節約する事が可能です。
新規内装リノベーション済の綺麗な室内。アフターサービス保証付。「高田駅」徒歩5分「綱島駅」徒歩圏です。