【仲介手数料無料】戸塚西パーク・ホームズ壱番館 2,480万円 神奈川県横浜市戸塚区矢部町1419-1の中古マンション||分譲マンション情報|住まいネクスト株式会社

仲介手数料無料の中古マンション専門 ゼロネクストへのお問い合わせ
  • ゼロネクストの不動産売却実績
  • ゼロネクストが仲介手数料無料な理由
  • 住まいネクスト株式会社について
  • ログイン
  • 会員登録
  • ゼロネクストへメールでお問い合わせ
>
>
中古マンション > 横浜市戸塚区 > JR東海道本線 >
戸塚西パーク・ホームズ壱番館

中古マンション

戸塚西パーク・ホームズ壱番館 お気に入り
価格 2,480万円値下がり ローンシミュレーション
所在地 神奈川県横浜市戸塚区矢部町1419-1
この地域周辺の物件を見る
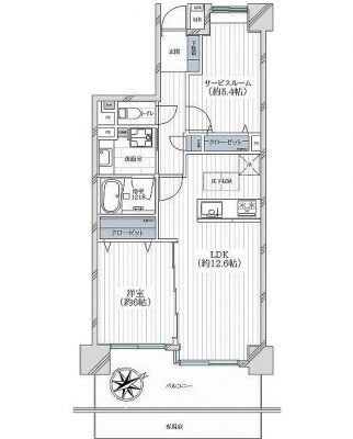
専有面積 59.08u 間取り 1SLDK (LDK12.6/洋室6/S5.4)
交通
JR東海道本線 戸塚/徒歩14分
JR横須賀線 戸塚/徒歩14分
横浜市営地下鉄ブルーライン 戸塚/徒歩14分
管理費等 10,230円 修繕積立金 11,820円
所在階/階数 1階/地上8階 地下1階建 築年月 1989年6月築 バルコニー面積 9.75m²
ここがおすすめ

【仲介手数料約89万円が無料になる物件です】
マンション購入時の諸費用を節約する事が可能です。
新規内装リノベーション済の綺麗な室内。アフターサービス保証付。宅配ボックス完備・ペットと暮らせます。


  • 現地外観写真 -
  • 間取り図 -
  • エントランス 宅配ボックス・オートロック
お問い合わせ、資料請求、見学のお申し込みはこちらから

電話をかける(携帯・PHS可)
0120-033-223
「ホームページを見た」とお伝え下さい。

お問い合わせ番号をお伝えください
RHS-c-29322

内見予約
お問合せ
内見予約・お問い合わせ

セールスポイント

設備・特徴
  • 仲介手数料無料
  • 1階部分
  • ペット飼育相談可
  • アフターサービス保証付
  • 新耐震基準適合物件
  • 駐輪場
  • 駐車場
  • 専用庭
  • 宅配ボックス
  • オートロック
  • エレベーター
  • 洗浄便座付トイレ
  • 室内洗濯機置場
  • 浴室換気乾燥機付
  • TVモニタ付インターホン
  • 給湯器(追焚機能付)
  • 食器洗浄乾燥機付
  • フローリング
  • 洗面化粧台
  • 浄水器一体型水栓
  • 床下収納
物件のおすすめ
ポイント
*~*:,_,:*~*:,_,:*~*:,_,:*
…╋ 戸塚西パーク・ホームズ壱番館 ╋…
*~*:,_,:*~*:,_,:*~*:,_,:*

.:*:…╋ 交通アクセス ╋…♪.:*:’ 

JR東海道線「戸塚」駅徒歩14分
JR横須賀線「戸塚」駅徒歩14分
湘南新宿ライン「戸塚」駅徒歩14分
横浜市営地下鉄「戸塚」駅徒歩14分

.:*:…╋ 特徴・ポイント ╋…♪.:*:’゜

1階部分・南東向き
浄水器付キッチン
食器洗浄乾燥機付
浴室換気乾燥機付
新耐震基準マンション
オートロック完備
宅配ボックス完備
エレベーター完備
ペット飼育可(規約有)

所在地:横浜市戸塚区矢部町1419-1
専有面積:59.08m2
バルコニー面積:9.75m2
専用庭面積:6m2
部屋数・間取り:1SLDK
築年月:平成元年6月
土地権利:所有権
構造:RC造地下1階付地上8階建
所在階:1階部分
総戸数:50戸
管理会社:三井不動産レジデンシャルサービス(株)
管理形態:全部委託(日勤)
管理費:10,230円/月
修繕積立金:11,820円/月
専用庭使用料:300円/月
分譲会社:三井不動産(株)
施工会社:駿河建設(株)
ペット飼育:可(規約有)
駐車場:8,000円〜10,000円/月
駐輪場:無償
現況:空室
引渡:相談

:*:…╋ 新規内装リノベーション内容 ╋…♪:*

UB新規交換
洗面台新規交換
トイレ新規交換
システムキッチン新規交換
クロス張替
フローリング張替
照明器具新設
分電盤交換
洗濯パン交換
全建具交換
給湯器交換
ルームクリーニング
※2025年11月13日完成済

物件概要

採光面 東南 取引態様 仲介
現況 空家 引渡し 相談
総戸数 50戸 構造 RC造
テラス面積 - 専用庭面積 6m²
駐車場 有:8,000円/月 駐輪場
建物権利 区分所有 土地権利 所有権の共有
用途地域 準住居地域 - - 管理態様 管理形態:委託(通勤)
管理組合:あり
管理会社:三井不動産レジデンシャルサービス
小学校区 横浜市立矢部小学校
(神奈川県横浜市戸塚区)
この学区の他の物件を見る
中学校区 戸塚中学校
(神奈川県横浜市戸塚区)
この学区の他の物件を見る
情報更新日 2026年03月08日 次回更新日 2026年03月22日
※各種情報と差異がある場合は現況優先となります
※物件情報の学区情報について
当サイト物件情報に記載されております通学区域(学区)情報は、国土数値情報ダウンロードサービスが提供する小学校区データ【2016年度】及び中学校区データ【2016年度】を元に加工したものですので、記載情報が現在の学区域と異なる場合がございます。
国土数値情報ダウンロードサービスのWEBサイト上で記述通り、データは必ずしも正確とは言えません。また、通学区域(学区)は毎年見直しの対象となりますので、そちらを踏まえ学区情報は参考としてご活用下さい。
お問い合わせ、資料請求、見学のお申し込みはこちらから

電話をかける(携帯・PHS可)
0120-033-223
「ホームページを見た」とお伝え下さい。

お問い合わせ番号をお伝えください
RHS-c-29322

内見予約
お問合せ
内見予約・お問い合わせ

この物件でローンシミュレーションする

年利率
ボーナス払い 返済年数
頭金 直接入力する 万円

毎月のご返済額

ボーナス(×年2回)

物件価格

2,480万円
※返済金額はあくまでも目安です。
  • こちらの物件を見たお客様はこんな物件もチェックしています。
  • お気に入り物件

電話でお問い合わせ
ゼロネクスト

電話をかける

0120-033-223

※「ホームページを見た」とお伝えください。
お問い合わせ番号をお伝えください
RHS-c-29322

お問い合わせ

お問い合わせ内容
お問合せ内容必須
【備考欄】
詳細な見学ご希望時間、ご質問、ご希望条件などがございましたらお聞かせ下さい。
(2000文字以内)
お客様情報
お名前必須
連絡先必須 メールアドレス

※ご記入いただいたメールアドレス宛てに、お問合せ内容の確認メールをお送りいたします。
※Yahoo!メールなどのフリーメールをご利用の場合、迷惑メールフォルダに入る場合があります。
 迷惑メールのフォルダ・設定等をご確認下さい。
電話番号
FAX(任意)
※ご入力いただいたお客さまの個人情報は、「個人情報のお取り扱いについて」に基づき適正に取り扱います。
必ずお読みになり、同意の上お問い合わせください。

お気軽にお問い合わせください

0120-033-223
物件番号 RHS-c-29322
※「ホームページを見た」
とお伝え下さい。

PAGE TOP

住まいネクスト株式会社 住まいネクスト株式会社ロゴ

〒143-0016

東京都 大田区大森北1-1-5 YK-16ビル 6F

JR京浜東北線「大森」駅北口出口から徒歩1分

※物件内覧の際は、現地でのお待ち合わせ・解散が可能です。
お電話でのお問い合わせはコチラ 03-6423-0433 営業時間 10:00〜20:30 定休日:水曜日・年末年始・夏季休暇

※ご案内中は電話に出られないこともございます。
   その際は折り返しお電話させて頂きます。