| 価格 | 成約済 ![]() |
||||||
|---|---|---|---|---|---|---|---|
| 所在地 | 東京都台東区三ノ輪1-25-7
この地域周辺の物件を見る |
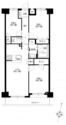
専有面積 | 63.21u | 間取り | 3LDK (LDK12.6/洋室6/洋室6/洋室4.2) | ||
| 交通 | 東京メトロ日比谷線 三ノ輪/徒歩3分
都電荒川線 三ノ輪橋/徒歩7分 JR常磐線 南千住/徒歩10分 |
管理費等 | 12,600円 | 修繕積立金 | 4,420円 | 所在階/階数 | 13階/地上14階建 | 築年月 | 1996年9月築 | バルコニー面積 | 6.89m² |
電話をかける(携帯・PHS可)
0120-033-223
「ホームページを見た」とお伝え下さい。
お問い合わせ番号をお伝えください
RHS-c-29231
| 設備・特徴 |
|
|---|---|
| 物件のおすすめ ポイント |
*~*:,_,:*~*:,_,:*~*:,_,:* …╋ 朝日シティパリオ三ノ輪 ╋… *~*:,_,:*~*:,_,:*~*:,_,:* .:*:…╋ 交通アクセス ╋…♪.:*:’ 東京メトロ日比谷線「三ノ輪」駅徒歩3分 都電荒川線「三ノ輪橋」駅徒歩7分 東京メトロ日比谷線「南千住」駅徒歩10分 JR常磐線「南千住」駅徒歩10分 つくばエクスプレス「南千住」駅徒歩10分 .:*:…╋ 特徴・ポイント ╋…♪.:*:’゜ フラット35適合 新耐震基準マンション エレベーター完備 オートロック完備 宅配ボックス完備 防犯カメラ完備 13階部分・南向き 陽当り・眺望良好 各室収納スペース有 収納豊富なWIC有 浄水器付キッチン 食器洗浄乾燥機付 浴室換気乾燥機付 アフターサービス保証 所在地:東京都台東区三ノ輪1-25-7 専有面積:63.21m2 バルコニー面積:6.89m2 部屋数・間取り:3LDK 築年月:1996年9月 土地権利:所有権 構造:SRC造地上14階建 所在階:13階部分 総戸数:80戸 管理会社:朝日管理(株) 管理形態:全部委託(日勤) 管理費:12,600円/月 修繕積立金:4,420円/月 分譲会社:朝日建物(株) 施工会社:東海興業(株) ペット飼育:不可 駐車場:28,000円〜30,000円/月 バイク置場:1,500円/月 駐輪場:200円〜300円/月 現況:空室 引渡:相談 :*:…╋ 新規内装リノベーション内容 ╋…♪:* 給湯器交換 システムキッチン交換 ユニットバス交換 洗面台交換 トイレ交換 全室クロス張替 全フローリング張替 全建具交換 CF張替 下足入れ交換 洗濯水栓器具交換 防水パン交換 スイッチパネル設置 ダウンライト設置 照明器具設置 玄関人感センサー設置 ※2026年2月完成 |
| 採光面 | 南 | 取引態様 | 仲介 |
|---|---|---|---|
| 現況 | 空家 | 引渡し | 相談 |
| 総戸数 | 80戸 | 構造 | SRC造 |
| テラス面積 | - | 専用庭面積 | - |
| 駐車場 | 有:28,000円/月 | 駐輪場 | 有:200円/月 |
| 建物権利 | 区分所有 | 土地権利 | 所有権の共有 |
| 用途地域 | 商業地域 - - | 管理態様 | 管理形態:委託(通勤) 管理組合:あり 管理会社:朝日管理 |
| 小学校区 | 東泉小学校 (東京都台東区) この学区の他の物件を見る |
中学校区 | 柏葉中学校 (東京都台東区) この学区の他の物件を見る |
| 情報更新日 | 2026年04月10日 | 次回更新日 | 2026年04月24日 |
電話をかける(携帯・PHS可)
0120-033-223
「ホームページを見た」とお伝え下さい。
お問い合わせ番号をお伝えください
RHS-c-29231
| 年利率 | % |
||
|---|---|---|---|
| ボーナス払い | 返済年数 | ||
| 頭金 | 直接入力する | 万円 | |

毎月のご返済額 |
ボーナス(×年2回) |
物件価格成約済 |
電話でお問い合わせ
ゼロネクスト
|
電話をかける 0120-033-223 ※「ホームページを見た」とお伝えください。 |
お問い合わせ番号をお伝えください RHS-c-29231 |
|---|
【仲介手数料が無料になる物件です】
マンション購入時の諸費用を節約する事が可能です。
新規内装リノベーションの綺麗な室内。「三ノ輪駅」徒歩3分「南千住駅」徒歩圏・複数路線利用可能で通勤通学に便利です。