| 価格 | 3,998万円値下がり ![]() |
||||||
|---|---|---|---|---|---|---|---|
| 所在地 | 神奈川県横浜市港北区新吉田東8-36-19
この地域周辺の物件を見る |
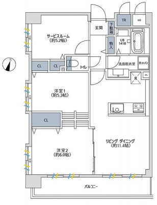
専有面積 | 61.35u | 間取り | 2SLDK (LDK11.4/洋室6/洋室5.3/S5.2) | ||
| 交通 | 横浜市営地下鉄ブルーライン 新羽/徒歩13分
|
管理費等 | 19,450円 | 修繕積立金 | 26,380円 | 所在階/階数 | 7階/地上7階 地下1階建 | 築年月 | 1998年3月築 | バルコニー面積 | 8.5m² |
電話をかける(携帯・PHS可)
0120-033-223
「ホームページを見た」とお伝え下さい。
お問い合わせ番号をお伝えください
RHS-c-29168
| 設備・特徴 |
|
|---|---|
| 物件のおすすめ ポイント |
*~*:,_,:*~*:,_,:*~* …╋ グランイーグル綱島 ╋… *~*:,_,:*~*:,_,:*~* .:*:…╋ 交通アクセス ╋…♪.:*:’ 横浜市営地下鉄「新羽」駅徒歩13分 .:*:…╋ 特徴・ポイント ╋…♪.:*:’゜ 最上階・南西角部屋 陽当り・眺望良好 各室収納スペース有 エアコン設置(1台) 浄水器付キッチン アフターサービス保証 新耐震基準マンション エレベーター完備 オートロック完備 宅配ボックス完備 ペット飼育可(規約有) 所在地:横浜市港北区新吉田東8-36-19 専有面積:61.35m2 バルコニー面積:8.50m2 部屋数・間取り:2SLDK 築年月:平成10年3月 土地権利:所有権 構造:RC造地下1階付地上7階建 所在階:7階部分 総戸数:42戸 管理会社:日本ハウズイング(株) 管理形態:全部委託(日勤) 管理費:19,450円/月 修繕積立金:26,380円/月 分譲会社:(株)グランイーグル 施工会社:(株)森本組 ペット飼育:可(規約有) 駐車場:無償(専用使用権付) バイク置場:500円/月 駐輪場:1住戸2台まで無償 現況:空室 引渡:相談 :*:…╋ 新規内装リノベーション内容 ╋…♪:* 玄関人感センサー 玄関収納 ユニットバス交換 洗面化粧台交換 シャワートイレ一体型交換 キッチン交換 壁・天井クロス貼替 建具交換 照明 (LDK・洋室・廊下等各所) フローリング貼替 (LDK ・洋室・廊下) フロアタイル貼替 (玄関・トイレ・洗面所) リビングエアコン設置 給湯器交換 ハウスクリーニング ※2025年10月完成済 |
| 採光面 | 南西 | 取引態様 | 仲介 |
|---|---|---|---|
| 現況 | 空家 | 引渡し | 相談 |
| 総戸数 | 42戸 | 構造 | RC造 |
| テラス面積 | - | 専用庭面積 | - |
| 駐車場 | 有 | 駐輪場 | 有 |
| 建物権利 | 区分所有 | 土地権利 | 所有権の共有 |
| 用途地域 | 準工業地域 - - | 管理態様 | 管理形態:委託(通勤) 管理組合:あり 管理会社:日本ハウズイング |
| 小学校区 | 横浜市立新田小学校 (神奈川県横浜市港北区) この学区の他の物件を見る |
中学校区 | 新羽中学校 (神奈川県横浜市港北区) この学区の他の物件を見る |
| 情報更新日 | 2026年02月11日 | 次回更新日 | 2026年02月25日 |
電話をかける(携帯・PHS可)
0120-033-223
「ホームページを見た」とお伝え下さい。
お問い合わせ番号をお伝えください
RHS-c-29168
| 年利率 | % |
||
|---|---|---|---|
| ボーナス払い | 返済年数 | ||
| 頭金 | 直接入力する | 万円 | |

毎月のご返済額 |
ボーナス(×年2回) |
物件価格3,998万円 |
電話でお問い合わせ
ゼロネクスト
|
電話をかける 0120-033-223 ※「ホームページを見た」とお伝えください。 |
お問い合わせ番号をお伝えください RHS-c-29168 |
|---|
【仲介手数料約139万円が無料になる物件です】
マンション購入時の諸費用を節約する事が可能です。
新規内装リノベーション済の綺麗な室内。最上階の南西向きにつき陽当たり・眺望良好。オートロック完備・ペットと暮らせます。