| 価格 | 成約済 ![]() |
||||||
|---|---|---|---|---|---|---|---|
| 所在地 | 東京都墨田区向島1-13-10
この地域周辺の物件を見る |
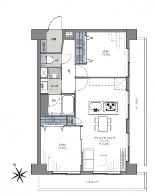
専有面積 | 48.07u | 間取り | 2LDK (LDK10.2/洋室5/洋室4.7) | ||
| 交通 | 東武伊勢崎線 とうきょうスカイツリー/徒歩5分
都営浅草線 本所吾妻橋/徒歩7分 東京メトロ半蔵門線 押上/徒歩11分 |
管理費等 | 16,500円 | 修繕積立金 | 11,110円 | 所在階/階数 | 5階/地上6階建 | 築年月 | 1989年5月築 | バルコニー面積 | - |
電話をかける(携帯・PHS可)
0120-033-223
「ホームページを見た」とお伝え下さい。
お問い合わせ番号をお伝えください
RHS-c-29131
| 設備・特徴 |
|
|---|---|
| 物件のおすすめ ポイント |
*~*:,_,:*~*:,_,:*~* …╋ グレースジュン ╋… *~*:,_,:*~*:,_,:*~* .:*:…╋ 交通アクセス ╋…♪.:*:’ 東武伊勢崎線「とうきょうスカイツリー」駅徒歩5分 都営浅草線「本所吾妻橋」駅徒歩7分 東京メトロ半蔵門線「押上」駅徒歩11分 都営浅草線「押上」駅徒歩11分 京成押上線「押上」駅徒歩11分 東武伊勢崎線「押上」駅徒歩11分 .:*:…╋ 特徴・ポイント ╋…♪.:*:’゜ 5階部分・南東角部屋 陽当り・眺望良好 スカイツリーVIEW 浄水器付キッチン 浴室換気乾燥機付 新耐震基準マンション 外壁タイル貼り エレベーター完備 オートロック完備 所在地:東京都墨田区向島1-13-10 専有面積:48.07m2 バルコニー面積:不明 部屋数・間取り:2LDK 築年月:平成元年5月 土地権利:所有権 構造:RC造地上6階建 所在階:5階部分 総戸数:18戸 管理会社:鈴与三和建物(株) 管理形態:全部委託(日勤) 管理費:16,500円/月 修繕積立金:11,110円/月 分譲会社:日東観興(株) 施工会社:(株)加藤林業建設 ペット飼育:不可 駐輪場:無償 現況:空室 引渡:相談 :*:…╋ 新規内装リノベーション内容 ╋…♪:* フローリング新規貼替 ユニットバス新規交換 洗面化粧台新規交換 トイレ新規交換 システムキッチン新規交換 壁・天井クロス新規交換 建具・玄関収納新規交換 給湯器新規交換 洗濯水栓・防水パン新規交換 給排水管新規交換(一部既存) ※2026年2月完成 |
| 採光面 | 東南 | 取引態様 | 仲介 |
|---|---|---|---|
| 現況 | 空家 | 引渡し | 相談 |
| 総戸数 | 18戸 | 構造 | RC造 |
| テラス面積 | - | 専用庭面積 | - |
| 駐車場 | なし | 駐輪場 | 有 |
| 建物権利 | 区分所有 | 土地権利 | 所有権の共有 |
| 用途地域 | - - - | 管理態様 | 管理形態:委託(通勤) 管理組合:あり 管理会社:鈴与三和建物 |
| 小学校区 | 墨田区立小梅小学校 (東京都墨田区) この学区の他の物件を見る |
中学校区 | 墨田中学校 (東京都墨田区) この学区の他の物件を見る |
| 情報更新日 | 2026年02月05日 | 次回更新日 | 2026年02月19日 |
電話をかける(携帯・PHS可)
0120-033-223
「ホームページを見た」とお伝え下さい。
お問い合わせ番号をお伝えください
RHS-c-29131
| 年利率 | % |
||
|---|---|---|---|
| ボーナス払い | 返済年数 | ||
| 頭金 | 直接入力する | 万円 | |

毎月のご返済額 |
ボーナス(×年2回) |
物件価格成約済 |
電話でお問い合わせ
ゼロネクスト
|
電話をかける 0120-033-223 ※「ホームページを見た」とお伝えください。 |
お問い合わせ番号をお伝えください RHS-c-29131 |
|---|
【仲介手数料が無料になる物件です】
マンション購入時の諸費用を節約する事が可能です。
新規内装リノベーションの綺麗な室内。オートロック完備・新耐震基準マンション。バルコニーからスカイツリーが望めます。