| 価格 | 2,290万円 ![]() |
||||||
|---|---|---|---|---|---|---|---|
| 所在地 | 神奈川県川崎市高津区蟹ケ谷22-1
この地域周辺の物件を見る |
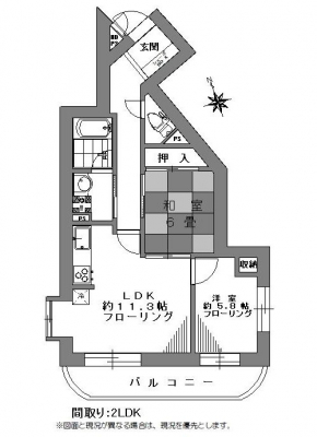
専有面積 | 58.94u | 間取り | 2LDK (LDK11.3/洋室5.8/和室6) | ||
| 交通 | 東急東横線 日吉/さくらが丘 バス11分 停歩7分
JR南武線 武蔵新城/蟹ヶ谷 バス15分 停歩4分 東急田園都市線 溝の口/蟹ヶ谷 バス25分 停歩4分 |
管理費等 | 9,990円 | 修繕積立金 | 22,920円 | 所在階/階数 | 4階/地上7階建 | 築年月 | 1994年5月築 | バルコニー面積 | 9.97m² |
電話をかける(携帯・PHS可)
0120-033-223
「ホームページを見た」とお伝え下さい。
お問い合わせ番号をお伝えください
RHS-c-29205
| 設備・特徴 |
|
|---|---|
| 物件のおすすめ ポイント |
*~*:,_,:*~*:,_,:*~*:,_,:* …╋ ニューウェルテラス第3日吉 ╋… *~*:,_,:*~*:,_,:*~*:,_,:* .:*:…╋ 交通アクセス ╋…♪.:*:’ 東急東横線「日吉」駅バス11分 「さくらが丘」バス停下車徒歩7分 東急目黒線「日吉」駅バス11分 「さくらが丘」バス停下車徒歩7分 東急新横浜線「日吉」駅バス11分 「さくらが丘」バス停下車徒歩7分 横浜市営地下鉄「日吉」駅バス11分 「さくらが丘」バス停下車徒歩7分 JR南武線「武蔵新城」駅バス15分 「蟹ヶ谷」バス停下車徒歩4分 東急田園都市線「溝の口」駅バス25分 「蟹ヶ谷」バス停下車徒歩4分 東急大井町線「溝の口」駅バス25分 「蟹ヶ谷」バス停下車徒歩4分 JR南武線「武蔵溝ノ口」駅バス25分 「蟹ヶ谷」バス停下車徒歩4分 .:*:…╋ 特徴・ポイント ╋…♪.:*:’゜ 4階部分・南東角部屋 陽当たり・通風良好 新耐震基準マンション エレベーター完備 ペットと暮らせます 所在地:川崎市高津区蟹ヶ谷22-1 専有面積:58.94m2 バルコニー面積:9.97m2 部屋数・間取り:2LDK 築年月:平成6年5月 土地権利:所有権 構造:RC造地上7階建 所在階:4階部分 総戸数:63戸 管理会社:エム・エフ・リビングサポート(株) 管理形態:全部委託(日勤) 管理費:9,990円/月 修繕積立金:22,920円/月 分譲会社:三条商事(株) (株)ニューウェル 施工会社:(株)大木組 ペット飼育:可(規約有) 駐車場:16,000円/月 バイク置場:1,000円/月 駐輪場:300円/月 現況:空室 引渡:相談 :*:…╋ 新規内装リノベーション内容 ╋…♪:* システムキッチン交換 ユニットバス交換 トイレ交換 洗面化粧台交換 フローリング張替 クロス張替 ハウスクリーニング等 ※2025年8月完成済 |
| 採光面 | 東南 | 取引態様 | 仲介 |
|---|---|---|---|
| 現況 | 空家 | 引渡し | 相談 |
| 総戸数 | 63戸 | 構造 | RC造 |
| テラス面積 | - | 専用庭面積 | - |
| 駐車場 | 有:16,000円/月 | 駐輪場 | 有:300円/月 |
| 建物権利 | 区分所有 | 土地権利 | 所有権の共有 |
| 用途地域 | 第一種中高層住居専用地域 - - | 管理態様 | 管理形態:委託(通勤) 管理組合:あり 管理会社:エム・エフ・リビングサポート |
| 小学校区 | 川崎市立子母口小学校 (神奈川県川崎市高津区) この学区の他の物件を見る |
中学校区 | 東橘中学校 (神奈川県川崎市高津区) この学区の他の物件を見る |
| 情報更新日 | 2025年12月17日 | 次回更新日 | 2025年12月31日 |
電話をかける(携帯・PHS可)
0120-033-223
「ホームページを見た」とお伝え下さい。
お問い合わせ番号をお伝えください
RHS-c-29205
| 年利率 | % |
||
|---|---|---|---|
| ボーナス払い | 返済年数 | ||
| 頭金 | 直接入力する | 万円 | |

毎月のご返済額 |
ボーナス(×年2回) |
物件価格2,290万円 |
電話でお問い合わせ
ゼロネクスト
|
電話をかける 0120-033-223 ※「ホームページを見た」とお伝えください。 |
お問い合わせ番号をお伝えください RHS-c-29205 |
|---|
【仲介手数料約82万円が無料になる物件です】
マンション購入時の諸費用を節約する事が可能です。
新規内装リノベーション済の綺麗な室内。4階部分南東角部屋につき陽当たり・通風良好。ペット飼育可・新耐震基準マンションです。