| 価格 | 3,190万円 ![]() |
||||||
|---|---|---|---|---|---|---|---|
| 所在地 | 神奈川県川崎市川崎区大島1-28-15
この地域周辺の物件を見る |
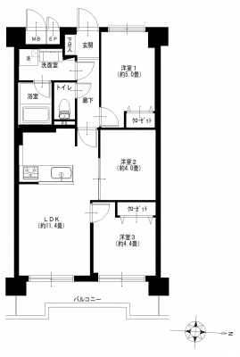
専有面積 | 54.88u | 間取り | 3LDK (LDK11.4/洋室5/洋室4.4/洋室4) | ||
| 交通 | JR南武線 小田栄/徒歩17分
京急大師線 港町/徒歩17分 JR東海道本線 川崎/徒歩21分 |
管理費等 | 7,840円 | 修繕積立金 | 21,130円 | 所在階/階数 | 4階/地上10階建 | 築年月 | 1984年9月築 | バルコニー面積 | 6.77m² |
電話をかける(携帯・PHS可)
0120-033-223
「ホームページを見た」とお伝え下さい。
お問い合わせ番号をお伝えください
RHS-c-28875
| 設備・特徴 |
|
|---|---|
| 物件のおすすめ ポイント |
*~*:,_,:*~*:,_,:*~* …╋ グリーンプラザ川崎 ╋… *~*:,_,:*~*:,_,:*~* .:*:…╋ 交通アクセス ╋…♪.:*:’ JR南武線「小田栄」駅徒歩17分 京急大師線「港町」駅徒歩17分 JR東海道線「川崎」駅徒歩21分 JR京浜東北線「川崎」駅徒歩21分 JR南武線「川崎」駅徒歩21分 京急本線「京急川崎」駅徒歩21分 .:*:…╋ 特徴・ポイント ╋…♪.:*:’゜ フラット35適合 住宅ローン減税適合 新耐震基準マンション エレベーター完備 防犯カメラ完備 4階部分・東向き 浄水器付キッチン 浴室換気乾燥機付 アフターサービス保証 所在地:川崎市川崎区大島1-25-15 専有面積:54.88m2 バルコニー面積:6.77m2 部屋数・間取り:3LDK 築年月:1984年9月 土地権利:所有権 構造:SRC造地上10階建 所在階:4階部分 総戸数:94戸 管理会社:(株)長谷工コミュニティ 管理形態:全部委託(日勤) 管理費:7,840円/月 修繕積立金:21,130円/月 分譲会社:ニチモ(株) 施工会社:戸田建設(株) ペット飼育:不可 駐車場:16,000円/月 バイク置場:200円〜300円/月 駐輪場:100円/月 現況:空室 引渡:相談 :*:…╋ 新規内装リノベーション内容 ╋…♪:* 給湯器交換 システムキッチン交換 ユニットバス交換 洗面台交換 トイレ交換 全室クロス張替 全フローリング張替 全建具交換 CF張替 下足入れ交換 洗濯水栓器具交換 防水パン交換 スイッチパネル設置 ダウンライト設置 照明器具設置 玄関人感センサー設置 ※2025年12月完成予定 |
| 採光面 | 東 | 取引態様 | 仲介 |
|---|---|---|---|
| 現況 | 空家 | 引渡し | 相談 |
| 総戸数 | 94戸 | 構造 | SRC造 |
| テラス面積 | - | 専用庭面積 | - |
| 駐車場 | 有:16,000円/月 | 駐輪場 | 有:100円/月 |
| 建物権利 | 区分所有 | 土地権利 | 所有権の共有 |
| 用途地域 | 近隣商業地域 第二種住居地域 - | 管理態様 | 管理形態:委託(通勤) 管理組合:あり 管理会社:長谷工コミュニティ |
| 小学校区 | 川崎市立向小学校 (神奈川県川崎市川崎区) この学区の他の物件を見る |
中学校区 | 渡田中学校 (神奈川県川崎市川崎区) この学区の他の物件を見る |
| 情報更新日 | 2025年11月22日 | 次回更新日 | 2025年12月06日 |
電話をかける(携帯・PHS可)
0120-033-223
「ホームページを見た」とお伝え下さい。
お問い合わせ番号をお伝えください
RHS-c-28875
| 年利率 | % |
||
|---|---|---|---|
| ボーナス払い | 返済年数 | ||
| 頭金 | 直接入力する | 万円 | |

毎月のご返済額 |
ボーナス(×年2回) |
物件価格3,190万円 |
電話でお問い合わせ
ゼロネクスト
|
電話をかける 0120-033-223 ※「ホームページを見た」とお伝えください。 |
お問い合わせ番号をお伝えください RHS-c-28875 |
|---|
【仲介手数料約111万円が無料になる物件です】
マンション購入時の諸費用を節約する事が可能です。
新規内装リノベーションの綺麗な室内。住宅ローン減税適合・エレベーター完備・ビッグターミナル「川崎駅」徒歩圏です。