| 価格 | 2,590万円 ![]() |
||||||
|---|---|---|---|---|---|---|---|
| 所在地 | 神奈川県川崎市幸区南加瀬4-10-31
この地域周辺の物件を見る |
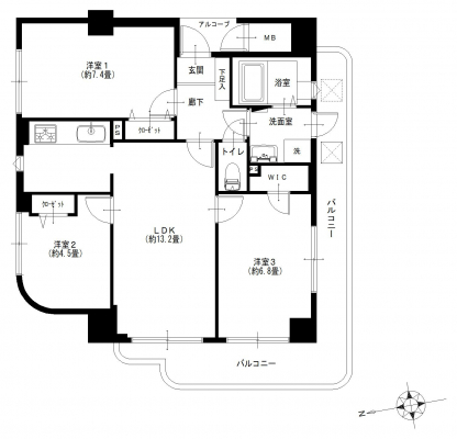
専有面積 | 69.32u | 間取り | 3LDK (LDK13.2/洋室7.4/洋室6.8/洋室4.5) | ||
| 交通 | 東急東横線 日吉/徒歩24分
東急目黒線 日吉/徒歩24分 横浜市営地下鉄グリーンライン 日吉/徒歩24分 |
管理費等 | 11,800円 | 修繕積立金 | 33,620円 | 所在階/階数 | 3階/地上6階建 | 築年月 | 1990年3月築 | バルコニー面積 | 15.38m² |
電話をかける(携帯・PHS可)
0120-033-223
「ホームページを見た」とお伝え下さい。
お問い合わせ番号をお伝えください
RHS-c-30381
| 設備・特徴 |
|
|---|---|
| 物件のおすすめ ポイント |
*~*:,_,:*~*:,_,:* …╋ サーパス日吉 ╋… *~*:,_,:*~*:,_,:* .:*:…╋ 交通アクセス ╋…♪.:*:’ 東急東横線「日吉」駅徒歩24分 東急目黒線「日吉」駅徒歩24分 東急新横浜線「日吉」駅徒歩24分 横浜市営地下鉄「日吉」駅徒歩24分 .:*:…╋ 特徴・ポイント ╋…♪.:*:’゜ 住宅ローン減税適合 フラット35適合 新耐震基準マンション エレベーター完備 オートロック完備 宅配ボックス完備 防犯カメラ完備 南西北3方向角部屋 陽当たり・通風良好 浄水器付キッチン 浴室換気乾燥機付 収納豊富なWIC有 各室収納スペース有 アフターサービス保証 所在地:川崎市幸区南加瀬4-10-31 専有面積:69.32m2 バルコニー面積:15.38m2 部屋数・間取り:3LDK 築年月:1990年3月 土地権利:所有権 構造:RC造地上6階建 所在階:3階部分 総戸数:27戸 管理会社:(株)東急コミュニティー 管理形態:全部委託(巡回) 管理費:11,800円/月 修繕積立金:33,620円/月 分譲会社:(株)穴吹工務店 施工会社:(株)穴吹工務店 ペット飼育:不可 駐車場:16,000円/月 バイク置場:1,000円/月 駐輪場:200円〜400円/月 現況:空室 引渡:相談 :*:…╋ 新規内装リノベーション内容 ╋…♪:* 給湯器交換 システムキッチン交換 ユニットバス交換 洗面台交換 トイレ交換 全室クロス張替 全フローリング張替 全建具交換 CF張替 下足入れ交換 洗濯水栓器具交換 防水パン交換 スイッチパネル設置 ダウンライト設置 照明器具設置 ※2025年10月完成済 |
| 採光面 | 南西 | 取引態様 | 仲介 |
|---|---|---|---|
| 現況 | 空家 | 引渡し | 相談 |
| 総戸数 | 27戸 | 構造 | RC造 |
| テラス面積 | - | 専用庭面積 | - |
| 駐車場 | 有:16,000円/月 | 駐輪場 | 有:200円/月 |
| 建物権利 | 区分所有 | 土地権利 | 所有権の共有 |
| 用途地域 | 第一種住居地域 - - | 管理態様 | 管理形態:委託(巡回) 管理組合:あり 管理会社:東急コミュニティー |
| 小学校区 | 川崎市立南加瀬小学校 (神奈川県川崎市幸区) この学区の他の物件を見る |
中学校区 | 南加瀬中学校 (神奈川県川崎市幸区) この学区の他の物件を見る |
| 情報更新日 | 2026年03月18日 | 次回更新日 | 2026年04月01日 |
電話をかける(携帯・PHS可)
0120-033-223
「ホームページを見た」とお伝え下さい。
お問い合わせ番号をお伝えください
RHS-c-30381
| 年利率 | % |
||
|---|---|---|---|
| ボーナス払い | 返済年数 | ||
| 頭金 | 直接入力する | 万円 | |

毎月のご返済額 |
ボーナス(×年2回) |
物件価格2,590万円 |
電話でお問い合わせ
ゼロネクスト
|
電話をかける 0120-033-223 ※「ホームページを見た」とお伝えください。 |
お問い合わせ番号をお伝えください RHS-c-30381 |
|---|
【仲介手数料約92万円が無料になる物件です】
マンション購入時の諸費用を節約する事が可能です。
新規内装リノベーション済の綺麗な室内。オートロック・宅配ボックス完備。南西北3方向角部屋・陽当り良好3LDKです。