| 価格 | 5,699万円 ![]() |
||||||
|---|---|---|---|---|---|---|---|
| 所在地 | 東京都中野区東中野5-17-8
この地域周辺の物件を見る |
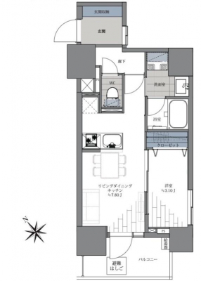
専有面積 | 33.77u | 間取り | 1LDK (LDK7.8/洋室3.1) | ||
| 交通 | 東京メトロ東西線 落合/徒歩3分
JR中央線 東中野/徒歩5分 都営大江戸線 東中野/徒歩9分 |
管理費等 | 11,000円 | 修繕積立金 | 10,640円 | 所在階/階数 | 4階/地上14階 地下1階建 | 築年月 | 2009年10月築 | バルコニー面積 | 5.48m² |
電話をかける(携帯・PHS可)
0120-033-223
「ホームページを見た」とお伝え下さい。
お問い合わせ番号をお伝えください
RHS-c-28865
| 設備・特徴 |
|
|---|---|
| 物件のおすすめ ポイント |
*~*:,_,:*~*:,_,:*~* …╋ イニシアイオ東中野 ╋… *~*:,_,:*~*:,_,:*~* .:*:…╋ 交通アクセス ╋…♪.:*:’ 東京メトロ東西線「落合」駅徒歩3分 JR中央総武線「東中野」駅徒歩5分 都営大江戸線「東中野」駅徒歩9分 .:*:…╋ 特徴・ポイント ╋…♪.:*:’゜ 南西×南東角部屋 陽当り・眺望良好 食器洗浄乾燥機付 浴室換気乾燥機付 外壁タイル貼り エレベーター完備 オートロック完備 宅配ボックス完備 ペットと暮らせます 所在地:東京都中野区東中野5-17-8 専有面積:33.77m2 バルコニー面積:5.48m2 部屋数・間取り:1LDK 築年月:平成21年10月 土地権利:所有権 構造:RC造地下1階付地上14階建 所在階:4階部分 総戸数:32戸 管理会社:大和ライフネクスト(株) 管理形態:全部委託(巡回) 管理費:11,000円/月 修繕積立金:10,640円/月 CATV使用料:880円/月 施工会社:(株)清水組 ペット飼育:可(規約有) 駐車場:27,000円〜30,000円/月 バイク置場:12,000円/年 駐輪場:2,400円〜3,600円/年 現況:空室 引渡:相談 :*:…╋ 新規内装リノベーション内容 ╋…♪:* フローリング新規貼替 ユニットバス新規交換 洗面化粧台新規交換 トイレ新規交換 システムキッチン新規交換 壁・天井クロス新規交換 建具・玄関収納新規交換 給湯器新規交換 洗濯水栓・防水パン新規交換 給排水管新規交換(一部既存) ※2026年1月完成予定 |
| 採光面 | 南西 | 取引態様 | 仲介 |
|---|---|---|---|
| 現況 | 空家 | 引渡し | 相談 |
| 総戸数 | 32戸 | 構造 | RC造 |
| テラス面積 | - | 専用庭面積 | - |
| 駐車場 | 有:27,000円/月 | 駐輪場 | 有:200円/月 |
| 建物権利 | 区分所有 | 土地権利 | 所有権の共有 |
| 用途地域 | - - - | 管理態様 | 管理形態:委託(巡回) 管理組合:あり 管理会社:大和ライフネクスト |
| 小学校区 | 中野区立白桜小学校 (東京都中野区) この学区の他の物件を見る |
中学校区 | 中野東中学校 (東京都中野区) この学区の他の物件を見る |
| 情報更新日 | 2025年11月21日 | 次回更新日 | 2025年12月05日 |
電話をかける(携帯・PHS可)
0120-033-223
「ホームページを見た」とお伝え下さい。
お問い合わせ番号をお伝えください
RHS-c-28865
| 年利率 | % |
||
|---|---|---|---|
| ボーナス払い | 返済年数 | ||
| 頭金 | 直接入力する | 万円 | |

毎月のご返済額 |
ボーナス(×年2回) |
物件価格5,699万円 |
電話でお問い合わせ
ゼロネクスト
|
電話をかける 0120-033-223 ※「ホームページを見た」とお伝えください。 |
お問い合わせ番号をお伝えください RHS-c-28865 |
|---|
【仲介手数料約194万円が無料になる物件です】
マンション購入時の諸費用を節約する事が可能です。
新規内装リノベーションの綺麗な室内。JR中央線「東中野駅」徒歩5分・オートロック完備・ペットと暮らせます。