| 価格 | 成約済 ![]() |
||||||
|---|---|---|---|---|---|---|---|
| 所在地 | 東京都台東区清川1-31-7
この地域周辺の物件を見る |
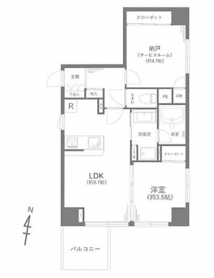
専有面積 | 45.01u | 間取り | 1SLDK (LDK9.7/洋室3.5/S4.7) | ||
| 交通 | 東京メトロ日比谷線 南千住/徒歩12分
JR常磐線 南千住/徒歩14分 つくばエクスプレス 南千住/徒歩14分 |
管理費等 | 14,800円 | 修繕積立金 | 4,500円 | 所在階/階数 | 2階/地上9階建 | 築年月 | 2019年7月築 | バルコニー面積 | 4.4m² |
電話をかける(携帯・PHS可)
0120-033-223
「ホームページを見た」とお伝え下さい。
お問い合わせ番号をお伝えください
RHS-c-28777
| 設備・特徴 |
|
|---|---|
| 物件のおすすめ ポイント |
*~*:,_,:*~*:,_,:*~* …╋ デラモット浅草エスト ╋… *~*:,_,:*~*:,_,:*~* .:*:…╋ 交通アクセス ╋…♪.:*:’ 東京メトロ日比谷線「南千住」駅徒歩12分 JR常磐線「南千住」駅徒歩14分 つくばエクスプレス「南千住」駅徒歩14分 .:*:…╋ 特徴・ポイント ╋…♪.:*:’゜ 2階部分・南東角部屋 浄水器付キッチン 浴室換気乾燥機付 全室フローリング アフターサービス保証 エレベーター完備 オートロック完備 宅配ボックス完備 ペットと暮らせます 所在地:東京都台東区清川1-31-7 専有面積:45.01m2 バルコニー面積:4.40m2 部屋数・間取り:1SLDK 築年月:2019年7月 土地権利:所有権 構造:RC造地上9階建 所在階:2階部分 総戸数:16戸 管理会社:(株)エヌティコーポレーション 管理形態:全部委託(巡回) 管理費:14,800円/月 修繕積立金:4,500円/月 ペット飼育:可(規約有) バイク置場:3,000円/月 駐輪場:2,400円〜3,600円/年 現況:空室 引渡:相談 :*:…╋ 新規内装リフォーム内容 ╋…♪:* ハウスクリーニング トイレ交換 ※2025年11月15日完成 |
| 採光面 | 東南 | 取引態様 | 仲介 |
|---|---|---|---|
| 現況 | 空家 | 引渡し | 相談 |
| 総戸数 | 16戸 | 構造 | RC造 |
| テラス面積 | - | 専用庭面積 | - |
| 駐車場 | なし | 駐輪場 | 有:200円/月 |
| 建物権利 | 区分所有 | 土地権利 | 所有権の共有 |
| 用途地域 | 近隣商業地域 - - | 管理態様 | 管理形態:委託(巡回) 管理組合:あり 管理会社:エヌティコーポレーション |
| 小学校区 | 石浜小学校 (東京都台東区) この学区の他の物件を見る |
中学校区 | 桜橋中学校 (東京都台東区) この学区の他の物件を見る |
| 情報更新日 | 2026年01月18日 | 次回更新日 | 2026年02月01日 |
電話をかける(携帯・PHS可)
0120-033-223
「ホームページを見た」とお伝え下さい。
お問い合わせ番号をお伝えください
RHS-c-28777
| 年利率 | % |
||
|---|---|---|---|
| ボーナス払い | 返済年数 | ||
| 頭金 | 直接入力する | 万円 | |

毎月のご返済額 |
ボーナス(×年2回) |
物件価格成約済 |
電話でお問い合わせ
ゼロネクスト
|
電話をかける 0120-033-223 ※「ホームページを見た」とお伝えください。 |
お問い合わせ番号をお伝えください RHS-c-28777 |
|---|
【仲介手数料が無料になる物件です】
マンション購入時の諸費用を節約する事が可能です。
新規内装リフォームの綺麗な室内。南東角部屋・通風良好。「南千住駅」徒歩圏・宅配ボックス完備・ペットと暮らせます。