| 価格 | 成約済 ![]() |
||||||
|---|---|---|---|---|---|---|---|
| 所在地 | 東京都板橋区南町43-3
この地域周辺の物件を見る |
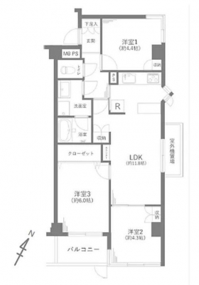
専有面積 | 61.8u | 間取り | 3LDK (LDK11.8/洋室6/洋室4.4/洋室4.3) | ||
| 交通 | 東京メトロ有楽町線 要町/徒歩12分
東武東上線 大山/徒歩13分 JR山手線 池袋/徒歩20分 |
管理費等 | 23,480円 | 修繕積立金 | 14,540円 | 所在階/階数 | 1階/地上6階 地下1階建 | 築年月 | 1987年9月築 | バルコニー面積 | 6.75m² |
電話をかける(携帯・PHS可)
0120-033-223
「ホームページを見た」とお伝え下さい。
お問い合わせ番号をお伝えください
RHS-c-28775
| 設備・特徴 |
|
|---|---|
| 物件のおすすめ ポイント |
*~*:,_,:*~*:,_,:*~*:,_* …╋ パーク・ノヴァ池袋要町 ╋… *~*:,_,:*~*:,_,:*~*:,_* .:*:…╋ 交通アクセス ╋…♪.:*:’ 東京メトロ副都心線「要町」駅徒歩12分 東京メトロ有楽町線「要町」駅徒歩12分 東武東上線「大山」駅徒歩13分 東京メトロ副都心線「千川」駅徒歩16分 東京メトロ有楽町線「千川」駅徒歩16分 JR山手線「池袋」駅徒歩20分 JR埼京線「池袋」駅徒歩20分 湘南新宿ライン「池袋」駅徒歩20分 東京メトロ丸ノ内線「池袋」駅徒歩20分 東京メトロ有楽町線「池袋」駅徒歩20分 東京メトロ副都心線「池袋」駅徒歩20分 西武池袋線「池袋」駅徒歩20分 東武東上線「池袋」駅徒歩20分 .:*:…╋ 特徴・ポイント ╋…♪.:*:’゜ オートロック完備 宅配ボックス完備 エレベーター完備 新耐震基準マンション 1階部分・南東角部屋 浄水器付キッチン 浴室換気乾燥機付 アフターサービス保証 所在地:東京都板橋区南町43-3 専有面積:61.80m2 バルコニー面積:9.75m2 部屋数・間取り:3LDK 築年月:昭和62年9月 土地権利:所有権 構造:RC造地下1階付地上6階建 所在階:1階部分 総戸数:42戸 管理会社:三井不動産レジデンシャルサービス 管理形態:全部委託(日勤) 管理費:23,480円/月 修繕積立金:14,540円/月 分譲会社:三井不動産(株) 施工会社:(株)新井組 ペット飼育:不可 事務所利用:不可 駐車場:25,000円/月 駐輪場:200円/月 現況:空室 引渡:相談 :*:…╋ 新規内装リフォーム内容 ╋…♪:* キッチンガスコンロ交換 浄水器付水栓交換 浴室鏡交換 トイレ交換 照明器具設置 スイッチコンセント交換 分電盤交換 給湯器交換 フローリング上貼 フロアタイル張替 クロス張替 ハウスクリーニング ※2025年11月5日完成済 .:*:…╋ Life Information ╋…♪.:*:’ セブンイレブン 約120m コモディイイダ 約500m スギドラック 約550m 板橋幸町郵便局 約500m 原内科クリニック 約270m 区立板橋第五小学校 約450m 区立板橋第二中学校 約850m |
| 採光面 | 東南 | 取引態様 | 仲介 |
|---|---|---|---|
| 現況 | 空家 | 引渡し | 相談 |
| 総戸数 | 42戸 | 構造 | RC造 |
| テラス面積 | - | 専用庭面積 | - |
| 駐車場 | 有:25,000円/月 | 駐輪場 | 有:200円/月 |
| 建物権利 | 区分所有 | 土地権利 | 所有権の共有 |
| 用途地域 | 第一種住居地域 - - | 管理態様 | 管理形態:委託(通勤) 管理組合:あり 管理会社:三井不動産レジデンシャルサービス |
| 小学校区 | 板橋区立板橋第五小学校 (東京都板橋区) この学区の他の物件を見る |
中学校区 | 板橋第二中学校 (東京都板橋区) この学区の他の物件を見る |
| 情報更新日 | 2026年04月16日 | 次回更新日 | 2026年04月30日 |
電話をかける(携帯・PHS可)
0120-033-223
「ホームページを見た」とお伝え下さい。
お問い合わせ番号をお伝えください
RHS-c-28775
| 年利率 | % |
||
|---|---|---|---|
| ボーナス払い | 返済年数 | ||
| 頭金 | 直接入力する | 万円 | |

毎月のご返済額 |
ボーナス(×年2回) |
物件価格成約済 |
電話でお問い合わせ
ゼロネクスト
|
電話をかける 0120-033-223 ※「ホームページを見た」とお伝えください。 |
お問い合わせ番号をお伝えください RHS-c-28775 |
|---|
【仲介手数料が無料になる物件です】
マンション購入時の諸費用を節約する事が可能です。
新規内装リフォーム済の綺麗な室内。新耐震基準マンション・オートロック完備。アフターサービス保証付です。