| 価格 | 成約済 ![]() |
||||||
|---|---|---|---|---|---|---|---|
| 所在地 | 東京都大田区南久が原2-1-5
この地域周辺の物件を見る |
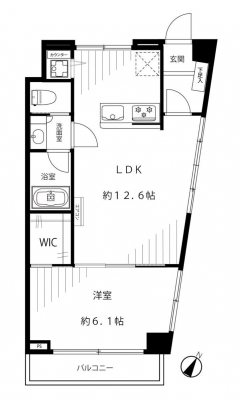
専有面積 | 44.67u | 間取り | 1LDK (LDK12.6/洋室6.1) | ||
| 交通 | 東急池上線 久が原/徒歩1分
東急多摩川線 鵜の木/徒歩12分 |
管理費等 | 4,193円 | 修繕積立金 | 4,193円 | 所在階/階数 | 4階/地上4階 地下1階建 | 築年月 | 1984年11月築 | バルコニー面積 | 3.38m² |
電話をかける(携帯・PHS可)
0120-033-223
「ホームページを見た」とお伝え下さい。
お問い合わせ番号をお伝えください
RHS-c-28526
| 設備・特徴 |
|
|---|---|
| 物件のおすすめ ポイント |
*~*:,_,:*~*:,_,:*~* …╋ シティー久が原 ╋… *~*:,_,:*~*:,_,:*~* .:*:…╋ 交通アクセス ╋…♪.:*:’ 東急池上線「久が原」駅徒歩1分 東急多摩川線「鵜の木」駅徒歩12分 .:*:…╋ 特徴・ポイント ╋…♪.:*:’゜ 最上階・南東角部屋 陽当り・眺望良好 収納豊富なWIC有 浄水器付キッチン 食器洗浄乾燥機付 浴室換気乾燥機付 エアコン設置(1台) アフターサービス保証 新耐震基準マンション 所在地:東京都大田区南久が原2-1-5 専有面積:44.67m2 バルコニー面積:3.38m2 部屋数・間取り:1LDK 築年月:昭和59年11月 土地権利:所有権 構造:RC造地下1階付地上4階建 所在階:4階部分 総戸数:15戸 管理形態:自主管理 管理費:4,193円/月 修繕積立金:4,193円/月 施工会社:清水建設(株) ペット飼育:不可 事務所利用:不可 現況:空室 引渡:相談 :*:…╋ 新規内装リノベーション内容 ╋…♪:* 壁・天井クロス フローリング 建具 洗面・トイレフロアタイル システムキッチン ユニットバス 洗面化粧台 トイレ 下足入れ エアコン1基 可動棚 洗濯パン ダウンライト クリーニング ※2025年10月2日完成済 |
| 採光面 | 東南 | 取引態様 | 仲介 |
|---|---|---|---|
| 現況 | 空家 | 引渡し | 相談 |
| 総戸数 | 15戸 | 構造 | RC造 |
| テラス面積 | - | 専用庭面積 | - |
| 駐車場 | なし | 駐輪場 | - |
| 建物権利 | 区分所有 | 土地権利 | 所有権の共有 |
| 用途地域 | 近隣商業地域 - - | 管理態様 | 管理形態:自主管理 管理組合:あり 管理会社:- |
| 小学校区 | 大田区立久原小学校 (東京都大田区) この学区の他の物件を見る |
中学校区 | 大森第十中学校 (東京都大田区) この学区の他の物件を見る |
| 情報更新日 | 2026年01月19日 | 次回更新日 | 2026年02月02日 |
電話をかける(携帯・PHS可)
0120-033-223
「ホームページを見た」とお伝え下さい。
お問い合わせ番号をお伝えください
RHS-c-28526
| 年利率 | % |
||
|---|---|---|---|
| ボーナス払い | 返済年数 | ||
| 頭金 | 直接入力する | 万円 | |

毎月のご返済額 |
ボーナス(×年2回) |
物件価格成約済 |
電話でお問い合わせ
ゼロネクスト
|
電話をかける 0120-033-223 ※「ホームページを見た」とお伝えください。 |
お問い合わせ番号をお伝えください RHS-c-28526 |
|---|
【仲介手数料が無料になる物件です】
マンション購入時の諸費用を節約する事が可能です。
新規内装リノベーション済の綺麗な室内。最上階の南東角部屋・陽当り良好。池上線「久が原駅」徒歩1分の好立地です。