| 価格 | 6,198万円値下がり ![]() |
||||||
|---|---|---|---|---|---|---|---|
| 所在地 | 神奈川県横浜市保土ケ谷区星川1-6-5
この地域周辺の物件を見る |
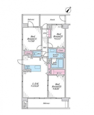
専有面積 | 75.12u | 間取り | 3LDK (LDK15.5/洋室7/洋室6/洋室5.1) | ||
| 交通 | 相鉄本線 星川/徒歩3分
|
管理費等 | 9,800円 | 修繕積立金 | 10,400円 | 所在階/階数 | 3階/地上7階建 | 築年月 | 1998年3月築 | バルコニー面積 | 14.8m² |
電話をかける(携帯・PHS可)
0120-033-223
「ホームページを見た」とお伝え下さい。
お問い合わせ番号をお伝えください
RHS-c-28467
| 設備・特徴 |
|
|---|---|
| 物件のおすすめ ポイント |
*~*:,_,:*~*:,_,:*~*:,_,:* …╋ コスモ星川パークステージ ╋… *~*:,_,:*~*:,_,:*~*:,_,:* .:*:…╋ 交通アクセス ╋…♪.:*:’ 相鉄本線「星川」駅徒歩3分 .:*:…╋ 特徴・ポイント ╋…♪.:*:’゜ 新耐震基準マンション エレベーター完備 オートロック完備 宅配ボックス完備 3階部分・南東向き 浄水器付キッチン 食器洗浄乾燥機付 浴室換気乾燥機付 収納豊富なWIC有 アフターサービス保証 所在地:横浜市保土ヶ谷区星川1-6-5 専有面積:75.12m2 バルコニー面積:14.8m2 部屋数・間取り:3LDK 築年月:平成10年3月 土地権利:所有権 構造:RC造地上7階建 所在階:3階部分 総戸数:55戸 管理会社:大和ライフネクスト(株) 管理形態:全部委託(日勤) 管理費:9,800円/月 修繕積立金:10,400円/月 分譲会社:(株)リクルートコスモス 施工会社:(株)イチケン ペット飼育:不可 駐車場:21,000円〜22,000円/月 駐輪場:100円〜300円/月 現況:空室 引渡:相談 :*:…╋ 新規内装リノベーション内容 ╋…♪:* フローリング張替 建具交換 配管更新 給湯器交換 システムキッチン交換 ユニットバス交換 洗面化粧台交換 トイレ交換 クロス張替 塩ビタイル張替 照明器具設置 ハウスクリーニング ※2025年10月完成 |
| 採光面 | 東南 | 取引態様 | 仲介 |
|---|---|---|---|
| 現況 | 空家 | 引渡し | 相談 |
| 総戸数 | 55戸 | 構造 | RC造 |
| テラス面積 | - | 専用庭面積 | - |
| 駐車場 | 有:21,000円/月 | 駐輪場 | 有:100円/月 |
| 建物権利 | 区分所有 | 土地権利 | 所有権の共有 |
| 用途地域 | 近隣商業地域 - - | 管理態様 | 管理形態:委託(通勤) 管理組合:あり 管理会社:大和ライフネクスト |
| 小学校区 | 横浜市立星川小学校 (神奈川県横浜市保土ケ谷区) この学区の他の物件を見る |
中学校区 | 岩崎中学校 (神奈川県横浜市保土ケ谷区) この学区の他の物件を見る |
| 情報更新日 | 2026年02月07日 | 次回更新日 | 2026年02月21日 |
電話をかける(携帯・PHS可)
0120-033-223
「ホームページを見た」とお伝え下さい。
お問い合わせ番号をお伝えください
RHS-c-28467
| 年利率 | % |
||
|---|---|---|---|
| ボーナス払い | 返済年数 | ||
| 頭金 | 直接入力する | 万円 | |

毎月のご返済額 |
ボーナス(×年2回) |
物件価格6,198万円 |
電話でお問い合わせ
ゼロネクスト
|
電話をかける 0120-033-223 ※「ホームページを見た」とお伝えください。 |
お問い合わせ番号をお伝えください RHS-c-28467 |
|---|
【仲介手数料約210万円が無料になる物件です】
マンション購入時の諸費用を節約する事が可能です。
新規内装リノベーションの綺麗な室内。南東向き3LDK・陽当り良好。利便性と落ち着きを兼ね備えた住環境です。