| 価格 | 6,390万円値下がり ![]() |
||||||
|---|---|---|---|---|---|---|---|
| 所在地 | 神奈川県横浜市都筑区長坂14-2
この地域周辺の物件を見る |
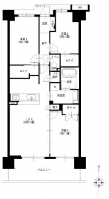
専有面積 | 77.16u | 間取り | 3LDK (LDK15.8/洋室7/洋室6.1/洋室5.4) | ||
| 交通 | 横浜市営地下鉄グリーンライン 都筑ふれあいの丘/徒歩10分
横浜市営地下鉄ブルーライン センター南/徒歩18分 横浜市営地下鉄グリーンライン センター南/徒歩18分 |
管理費等 | 13,050円 | 修繕積立金 | 17,760円 | 所在階/階数 | 7階/地上8階建 | 築年月 | 2011年11月築 | バルコニー面積 | 12.4m² |
電話をかける(携帯・PHS可)
0120-033-223
「ホームページを見た」とお伝え下さい。
お問い合わせ番号をお伝えください
RHS-c-28310
| 設備・特徴 |
|
|---|---|
| 物件のおすすめ ポイント |
*~*:,_,:*~*:,_,:*~* …╋ シーズンプレイスB棟 ╋… *~*:,_,:*~*:,_,:*~* .:*:…╋ 交通アクセス ╋…♪.:*:’ 横浜市営地下鉄「都筑ふれあいの丘」駅徒歩10分 横浜市営地下鉄「センター南」駅徒歩18分 .:*:…╋ 特徴・ポイント ╋…♪.:*:’゜ フラット35適合 住宅ローン減税適合 ビッグコミュニティ エレベーター完備 オートロック完備 宅配ボックス完備 防犯カメラ完備 ペットと暮らせます 7階部分・南向き 陽当り・眺望良好 収納豊富なWIC有 各室収納スペース有 浄水器付キッチン 食器洗浄乾燥機付 浴室換気乾燥機付 アフターサービス保証 所在地:横浜市都筑区長坂14-2 専有面積:77.16m2 バルコニー面積:12.40m2 部屋数・間取り:3LDK 築年月:2011年11月 土地権利:所有権 構造:RC造地上8階建 所在階:7階部分 総戸数:243戸 管理会社:(株)長谷工コミュニティ 管理形態:全部委託(日勤) 管理費:13,050円/月 修繕積立金:17,760円/月 分譲会社:相鉄不動産(株) 大東通商(株) (株)長谷工コーポレーション ミサワホーム東京(株) 施工会社:(株)長谷工コーポレーション ペット飼育:可(2匹迄可・規約有) 駐車場:1,900円〜10,000円/月 バイク置場:1,500円〜2,000円/月 駐輪場:1,200円〜2,400円/年 現況:空室 引渡:相談 :*:…╋ 新規内装リノベーション内容 ╋…♪:* 電気温水器交換 システムキッチン交換 ユニットバス交換 洗面台交換 トイレ交換 全室クロス張替 全フローリング張替 全建具交換 CF張替 下足入れ交換 洗濯水栓器具交換 防水パン交換 スイッチパネル設置 ダウンライト設置 照明器具設置 玄関人感センサー設置 ※2025年10月完成 |
| 採光面 | 南 | 取引態様 | 仲介 |
|---|---|---|---|
| 現況 | 空家 | 引渡し | 相談 |
| 総戸数 | 243戸 | 構造 | RC造 |
| テラス面積 | - | 専用庭面積 | - |
| 駐車場 | 有:1,900円/月 | 駐輪場 | 有:100円/月 |
| 建物権利 | 区分所有 | 土地権利 | 所有権の共有 |
| 用途地域 | 第一種低層住居専用地域 準住居地域 - | 管理態様 | 管理形態:委託(通勤) 管理組合:あり 管理会社:長谷工コミュニティ |
| 小学校区 | 横浜市立茅ヶ崎台小学校 (神奈川県横浜市都筑区) この学区の他の物件を見る |
中学校区 | 茅ヶ崎中学校 (神奈川県横浜市都筑区) この学区の他の物件を見る |
| 情報更新日 | 2026年03月03日 | 次回更新日 | 2026年03月17日 |
電話をかける(携帯・PHS可)
0120-033-223
「ホームページを見た」とお伝え下さい。
お問い合わせ番号をお伝えください
RHS-c-28310
| 年利率 | % |
||
|---|---|---|---|
| ボーナス払い | 返済年数 | ||
| 頭金 | 直接入力する | 万円 | |

毎月のご返済額 |
ボーナス(×年2回) |
物件価格6,390万円 |
電話でお問い合わせ
ゼロネクスト
|
電話をかける 0120-033-223 ※「ホームページを見た」とお伝えください。 |
お問い合わせ番号をお伝えください RHS-c-28310 |
|---|
【仲介手数料約218万円が無料になる物件です】
マンション購入時の諸費用を節約する事が可能です。
新規内装リノベーションの綺麗な室内。7階南向き・陽当り良好。ペット飼育可・総戸数243戸の大規模マンションです。