| 価格 | 成約済 ![]() |
||||||
|---|---|---|---|---|---|---|---|
| 所在地 | 東京都台東区蔵前4-36-1
この地域周辺の物件を見る |
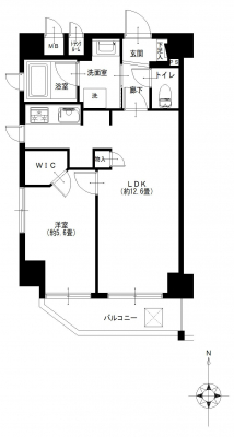
専有面積 | 42.82u | 間取り | 1LDK (LDK12.6/洋室5.6) | ||
| 交通 | 都営浅草線 蔵前/徒歩5分
都営大江戸線 蔵前/徒歩5分 |
管理費等 | 10,000円 | 修繕積立金 | 25,000円 | 所在階/階数 | 4階/地上11階建 | 築年月 | 2006年1月築 | バルコニー面積 | 4.62m² |
電話をかける(携帯・PHS可)
0120-033-223
「ホームページを見た」とお伝え下さい。
お問い合わせ番号をお伝えください
RHS-c-28210
| 設備・特徴 |
|
|---|---|
| 物件のおすすめ ポイント |
*~*:,_,:*~*:,_,:*~* …╋ サンソフィア蔵前 ╋… *~*:,_,:*~*:,_,:*~* .:*:…╋ 交通アクセス ╋…♪.:*:’ 都営浅草線「蔵前」駅徒歩5分 都営大江戸線「蔵前」駅徒歩5分 .:*:…╋ 特徴・ポイント ╋…♪.:*:’゜ フラット35適合 新耐震基準マンション 大規模修繕工事実施済 エレベーター完備 オートロック完備 宅配ボックス完備 防犯カメラ完備 ペットと暮らせます 4階部分・南西角部屋 陽当たり・通風良好 収納豊富なWIC有 浄水器付キッチン 浴室換気乾燥機付 アフターサービス保証 所在地:東京都台東区蔵前4-36-1 専有面積:42.82m2 バルコニー面積:4.62m2 部屋数・間取り:1LDK 築年月:2006年1月 土地権利:所有権 構造:RC造地上11階建 所在階:4階部分 総戸数:27戸 管理会社:日本ハウズイング(株) 管理形態:全部委託(巡回) 管理費:10,000円/月 修繕積立金:25,000円/月 分譲会社:(有)大雄産業 施工会社:(株)沢木組・(株)第一ヒューテック ペット飼育:可(規約有) 駐車場:20,000円〜30,000円/月 バイク置場:700円/月 駐輪場:300円/月 現況:空室 引渡:相談 :*:…╋ 新規内装リノベーション内容 ╋…♪:* キッチン交換 ユニットバス交換 洗面台交換 トイレ交換 全室クロス張替 全フローリング張替 全建具交換 CF張替 下足入れ交換 洗濯水栓器具交換 防水パン交換 スイッチパネル設置 ダウンライト設置 照明器具設置 玄関人感センサー設置 ※2025年12月完成 |
| 採光面 | 南西 | 取引態様 | 仲介 |
|---|---|---|---|
| 現況 | 空家 | 引渡し | 相談 |
| 総戸数 | 27戸 | 構造 | RC造 |
| テラス面積 | - | 専用庭面積 | - |
| 駐車場 | 有:20,000円/月 | 駐輪場 | 有:300円/月 |
| 建物権利 | 区分所有 | 土地権利 | 所有権の共有 |
| 用途地域 | 商業地域 - - | 管理態様 | 管理形態:委託(巡回) 管理組合:あり 管理会社:日本ハウズイング |
| 小学校区 | 蔵前小学校 (東京都台東区) この学区の他の物件を見る |
中学校区 | 御徒町台東中学校 (東京都台東区) この学区の他の物件を見る |
| 情報更新日 | 2026年04月10日 | 次回更新日 | 2026年04月24日 |
電話をかける(携帯・PHS可)
0120-033-223
「ホームページを見た」とお伝え下さい。
お問い合わせ番号をお伝えください
RHS-c-28210
| 年利率 | % |
||
|---|---|---|---|
| ボーナス払い | 返済年数 | ||
| 頭金 | 直接入力する | 万円 | |

毎月のご返済額 |
ボーナス(×年2回) |
物件価格成約済 |
電話でお問い合わせ
ゼロネクスト
|
電話をかける 0120-033-223 ※「ホームページを見た」とお伝えください。 |
お問い合わせ番号をお伝えください RHS-c-28210 |
|---|
【仲介手数料が無料になる物件です】
マンション購入時の諸費用を節約する事が可能です。
新規内装リノベーションの綺麗な室内。南西角部屋・陽当り良好。ペット飼育可・2023年大規模修繕工事実施済です。