| 価格 | 成約済 ![]() |
||||||
|---|---|---|---|---|---|---|---|
| 所在地 | 東京都新宿区富久町8-1
この地域周辺の物件を見る |
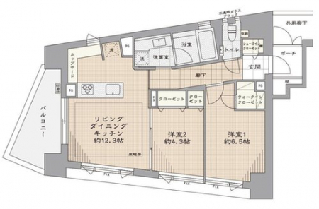
専有面積 | 57.18u | 間取り | 2LDK (LDK12.3/洋室6.5/洋室4.3) | ||
| 交通 | 都営新宿線 曙橋/徒歩4分
東京メトロ丸ノ内線 四谷三丁目/徒歩6分 |
管理費等 | 17,000円 | 修繕積立金 | 26,930円 | 所在階/階数 | 11階/地上13階建 | 築年月 | 2004年10月築 | バルコニー面積 | 8.26m² |
電話をかける(携帯・PHS可)
0120-033-223
「ホームページを見た」とお伝え下さい。
お問い合わせ番号をお伝えください
RHS-c-28205
| 設備・特徴 |
|
|---|---|
| 物件のおすすめ ポイント |
*~*:,_,:*~*:,_,:* …╋ ピアース四谷 ╋… *~*:,_,:*~*:,_,:* .:*:…╋ 交通アクセス ╋…♪.:*:’ 都営新宿線「曙橋」駅徒歩4分 東京メトロ丸ノ内線「「四谷三丁目」駅徒歩6分 .:*:…╋ 特徴・ポイント ╋…♪.:*:’゜ 11階部分・南東角部屋 陽当り・眺望良好 収納豊富なWIC有 各室収納スペース有 玄関SIC収納有 床暖房完備(LD部) 食器洗浄乾燥機付 浴室換気乾燥機付 エアコン設置(1台) アフターサービス保証 エレベーター完備 オートロック完備 宅配ボックス完備 大規模修繕工事実施済 ペットと暮らせます 所在地:東京都新宿区富久町8-1 専有面積:57.18m2 バルコニー面積:8.26m2 部屋数・間取り:2LDK 築年月:平成16年10月 土地権利:所有権 構造:SRC造地上13階建 所在階:11階部分 総戸数:33戸 管理会社:(株)モリモトクオリティ 管理形態:全部委託(日勤) 管理費:17,000円/月 修繕積立金:26,930円/月 分譲会社:(株)モリモト 施工会社:間組・安藤建設 ペット飼育:可(規約有) 事務所利用:不可 駐車場:35,000円/月 バイク置場:2,000円/月 駐輪場:300円/月 現況:空室 引渡:相談 :*:…╋ 新規内装リノベーション内容 ╋…♪:* フローリング新規貼替 給水管・給湯管新規交換(専有部) 建具・玄関収納等新規交換 洗面化粧台新規交換 洗浄便座付トイレ新規交換 ユニットバス新規交換 (浴室換気乾燥機付) システムキッチン新規交換 (食器洗機付) 壁・天井クロス新規貼替 照明器具新規設置 エアコン一基新規設置 床暖房マット新規設置 給湯器新規交換(追焚式) ※2025年6月完成済 .:*:…╋ Life Information ╋…♪.:*:’ まいばすけっと:徒歩2分 スーパーダイエー:徒歩8分 ローソン:徒歩2分 セブンイレブン:徒歩2分 ココカラファイン:徒歩6分 新宿区立花園小学校:徒歩7分 新宿区立四谷中学校:徒歩20分 |
| 採光面 | 東南 | 取引態様 | 仲介 |
|---|---|---|---|
| 現況 | 空家 | 引渡し | 相談 |
| 総戸数 | 33戸 | 構造 | SRC造 |
| テラス面積 | - | 専用庭面積 | - |
| 駐車場 | 有:35,000円/月 | 駐輪場 | 有:300円/月 |
| 建物権利 | 区分所有 | 土地権利 | 所有権の共有 |
| 用途地域 | 商業地域 - - | 管理態様 | 管理形態:委託(通勤) 管理組合:あり 管理会社:モリモトクオリティ |
| 小学校区 | 新宿区立花園小学校 (東京都新宿区) この学区の他の物件を見る |
中学校区 | 四谷中学校 (東京都新宿区) この学区の他の物件を見る |
| 情報更新日 | 2025年12月30日 | 次回更新日 | 2026年01月13日 |
電話をかける(携帯・PHS可)
0120-033-223
「ホームページを見た」とお伝え下さい。
お問い合わせ番号をお伝えください
RHS-c-28205
| 年利率 | % |
||
|---|---|---|---|
| ボーナス払い | 返済年数 | ||
| 頭金 | 直接入力する | 万円 | |

毎月のご返済額 |
ボーナス(×年2回) |
物件価格成約済 |
電話でお問い合わせ
ゼロネクスト
|
電話をかける 0120-033-223 ※「ホームページを見た」とお伝えください。 |
お問い合わせ番号をお伝えください RHS-c-28205 |
|---|
【仲介手数料が無料になる物件です】
マンション購入時の諸費用を節約する事が可能です。
新規内装リノベーション済の綺麗な室内。11階南東角部屋につき陽当たり・眺望良好。宅配ボックス完備・ペットと暮らせます。