| 価格 | 2,599万円値下がり ![]() |
||||||
|---|---|---|---|---|---|---|---|
| 所在地 | 神奈川県横浜市旭区白根3-15-10
この地域周辺の物件を見る |
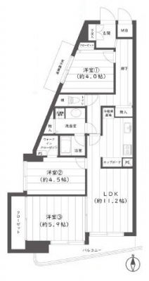
専有面積 | 67.03u | 間取り | 3LDK (LDK11.2/洋室5.9/洋室4.5/洋室4) | ||
| 交通 | 相鉄本線 鶴ヶ峰/徒歩9分
|
管理費等 | 12,500円 | 修繕積立金 | 27,220円 | 所在階/階数 | 5階/地上7階建 | 築年月 | 1991年4月築 | バルコニー面積 | 9.11m² |
電話をかける(携帯・PHS可)
0120-033-223
「ホームページを見た」とお伝え下さい。
お問い合わせ番号をお伝えください
RHS-c-28089
| 設備・特徴 |
|
|---|---|
| 物件のおすすめ ポイント |
*~*:,_,:*~*:,_,:*~* …╋ コスモ横浜鶴ヶ峰 ╋… *~*:,_,:*~*:,_,:*~* .:*:…╋ 交通アクセス ╋…♪.:*:’ 相鉄本線「鶴ヶ峰」駅徒歩9分 .:*:…╋ 特徴・ポイント ╋…♪.:*:’゜ 5階部分・南西角部屋 陽当たり・通風良好 収納豊富なWIC有 浄水器付キッチン 食器洗浄乾燥機付 浴室換気乾燥機付 エアコン設置(1台) 新耐震基準マンション エレベーター完備 オートロック完備 所在地:横浜市旭区白根3-15-10 専有面積:67.03m2 バルコニー面積:9.11m2 部屋数・間取り:3LDK 築年月:平成3年4月 土地権利:所有権 構造:RC造地上7階建 所在階:5階部分 総戸数:24戸 管理会社:大和ライフネクスト(株) 管理形態:全部委託(巡回) 管理費:12,500円/月 修繕積立金:27,220円/月 特別負担金:639円/月 分譲会社:(株)リクルートコスモス 施工会社:不二建設(株) ペット飼育:不可 事務所利用:不可 駐車場:16,000円/月 バイク置場:有 駐輪場:有 現況:空室 引渡:相談 :*:…╋ 新規内装リノベーション内容 ╋…♪:* キッチン交換 ユニットバス交換 洗面化粧台交換 トイレ交換 クロス張替 フローリング張替 建具交換 給湯器交換 給排水管更新 シューズボックス交換 間接照明設置 ダウンライト設置 エコカラット設置 エアコン設置(1台) 網戸張替 ハウスクリーニング ※2025年8月完成済 |
| 採光面 | 南西 | 取引態様 | 仲介 |
|---|---|---|---|
| 現況 | 空家 | 引渡し | 相談 |
| 総戸数 | 24戸 | 構造 | RC造 |
| テラス面積 | - | 専用庭面積 | - |
| 駐車場 | 有:16,000円/月 | 駐輪場 | 有 |
| 建物権利 | 区分所有 | 土地権利 | 所有権の共有 |
| 用途地域 | 第二種住居地域 - - | 管理態様 | 管理形態:委託(巡回) 管理組合:あり 管理会社:大和ライフネクスト |
| 小学校区 | 横浜市立不動丸小学校 (神奈川県横浜市旭区) この学区の他の物件を見る |
中学校区 | 鶴ヶ峯中学校 (神奈川県横浜市旭区) この学区の他の物件を見る |
| 情報更新日 | 2026年03月05日 | 次回更新日 | 2026年03月19日 |
電話をかける(携帯・PHS可)
0120-033-223
「ホームページを見た」とお伝え下さい。
お問い合わせ番号をお伝えください
RHS-c-28089
| 年利率 | % |
||
|---|---|---|---|
| ボーナス払い | 返済年数 | ||
| 頭金 | 直接入力する | 万円 | |

毎月のご返済額 |
ボーナス(×年2回) |
物件価格2,599万円 |
電話でお問い合わせ
ゼロネクスト
|
電話をかける 0120-033-223 ※「ホームページを見た」とお伝えください。 |
お問い合わせ番号をお伝えください RHS-c-28089 |
|---|
【仲介手数料約92万円が無料になる物件です】
マンション購入時の諸費用を節約する事が可能です。
新規内装リノベーション済の綺麗な室内。5階南西角部屋につき陽当たり・通風良好。オートロック完備・新耐震基準マンションです。