| 価格 | 5,690万円 ![]() |
||||||
|---|---|---|---|---|---|---|---|
| 所在地 | 神奈川県横浜市港北区箕輪町2-3-7
この地域周辺の物件を見る |
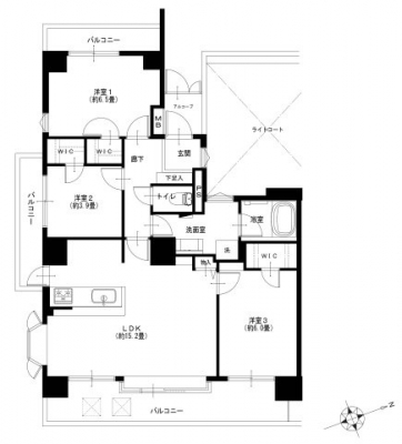
専有面積 | 72.33u | 間取り | 3LDK (LDK15.2/洋室6.5/洋室6/洋室3.9) | ||
| 交通 | 東急東横線 日吉/徒歩11分
東急目黒線 日吉/徒歩11分 横浜市営地下鉄グリーンライン 日吉/徒歩11分 |
管理費等 | 6,510円 | 修繕積立金 | 13,760円 | 所在階/階数 | 9階/地上14階建 | 築年月 | 1988年7月築 | バルコニー面積 | 19.62m² |
電話をかける(携帯・PHS可)
0120-033-223
「ホームページを見た」とお伝え下さい。
お問い合わせ番号をお伝えください
RHS-c-27992
| 設備・特徴 |
|
|---|---|
| 物件のおすすめ ポイント |
*~*:,_,:*~*:,_,:*~*:,_,:* …╋ 日吉ロイヤルマンション ╋… *~*:,_,:*~*:,_,:*~*:,_,:* .:*:…╋ 交通アクセス ╋…♪.:*:’ 東急東横線「日吉」駅徒歩11分 東急目黒線「日吉」駅徒歩11分 東急新横浜線「日吉」駅徒歩11分 横浜市営地下鉄「日吉」駅徒歩11分 .:*:…╋ 特徴・ポイント ╋…♪.:*:’゜ フラット35適合 住宅ローン減税適合 新耐震基準マンション エレベーター完備 宅配ボックス完備 防犯カメラ完備 9階部分・南東角部屋 陽当り・眺望良好 浄水器付キッチン 浴室換気乾燥機付 収納豊富なWIC有 アフターサービス保証 所在地:横浜市港北区箕輪町2-3-7 専有面積:72.33m2 バルコニー面積:19.62m2 部屋数・間取り:3LDK 築年月:1988年7月 土地権利:所有権 構造:SRC造地上14階建 所在階:9階部分 総戸数:258戸 管理会社:(株)東急コミュニティー 管理形態:全部委託(日勤) 管理費:6,510円/月 修繕積立金:13,760円/月 分譲会社:川鉄商事(株) 施工会社:(株)熊谷組 大豊建設(株) 本間建設(株) ペット飼育:不可 駐車場:15,000円/月 バイク置場:1,500円〜3,000円/月 駐輪場:500円/月 現況:空室 引渡:相談 :*:…╋ 新規内装リノベーション内容 ╋…♪:* システムキッチン交換 ユニットバス交換 洗面台交換 トイレ交換 全室クロス張替 全フローリング張替 全建具交換 CF張替 下足入れ交換 洗濯水栓器具交換 防水パン交換 スイッチパネル設置 ダウンライト設置 照明器具設置 玄関人感センサー設置 ※2025年11月完成予定 |
| 採光面 | 東南 | 取引態様 | 仲介 |
|---|---|---|---|
| 現況 | 空家 | 引渡し | 相談 |
| 総戸数 | 258戸 | 構造 | SRC造 |
| テラス面積 | - | 専用庭面積 | - |
| 駐車場 | 有:15,000円/月 | 駐輪場 | 有:500円/月 |
| 建物権利 | 区分所有 | 土地権利 | 所有権の共有 |
| 用途地域 | 準工業地域 - - | 管理態様 | 管理形態:委託(通勤) 管理組合:あり 管理会社:東急コミュニティー |
| 小学校区 | 横浜市立日吉南小学校 (神奈川県横浜市港北区) この学区の他の物件を見る |
中学校区 | 日吉台中学校 (神奈川県横浜市港北区) この学区の他の物件を見る |
| 情報更新日 | 2025年09月11日 | 次回更新日 | 2025年09月25日 |
電話をかける(携帯・PHS可)
0120-033-223
「ホームページを見た」とお伝え下さい。
お問い合わせ番号をお伝えください
RHS-c-27992
| 年利率 | % |
||
|---|---|---|---|
| ボーナス払い | 返済年数 | ||
| 頭金 | 直接入力する | 万円 | |

毎月のご返済額 |
ボーナス(×年2回) |
物件価格5,690万円 |
電話でお問い合わせ
ゼロネクスト
|
電話をかける 0120-033-223 ※「ホームページを見た」とお伝えください。 |
お問い合わせ番号をお伝えください RHS-c-27992 |
|---|
【仲介手数料約194万円が無料になる物件です】
マンション購入時の諸費用を節約する事が可能です。
新規内装リノベーションの綺麗な室内。宅配ボックス完備・新耐震基準マンション。9階南東角部屋につき陽当たり・眺望良好です。