【仲介手数料無料】オープンレジデンシア小石川三丁目 成約済 東京都文京区小石川3-35-10の中古マンション||分譲マンション情報|住まいネクスト株式会社

仲介手数料無料の中古マンション専門 ゼロネクストへのお問い合わせ
  • ゼロネクストの不動産売却実績
  • ゼロネクストが仲介手数料無料な理由
  • 住まいネクスト株式会社について
  • ログイン
  • 会員登録
  • ゼロネクストへメールでお問い合わせ
>
>
中古マンション > 文京区 > 都営大江戸線 >
オープンレジデンシア小石川三丁目

中古マンション

オープンレジデンシア小石川三丁目 お気に入り
価格 成約済 ローンシミュレーション
所在地 東京都文京区小石川3-35-10
この地域周辺の物件を見る
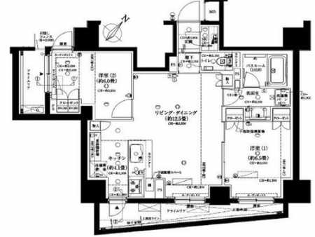
専有面積 53.22u 間取り 2LDK (LDK12.5/洋室6.5/洋室6)
交通
都営大江戸線 春日/徒歩10分
東京メトロ丸ノ内線 後楽園/徒歩11分
都営三田線 白山/徒歩12分
管理費等 15,424円 修繕積立金 13,780円
所在階/階数 1階/地上9階建 築年月 2014年9月築 バルコニー面積 11.92m²
ここがおすすめ

【仲介手数料が無料になる物件です】
マンション購入時の諸費用を節約する事が可能です。
新規内装リフォームの綺麗な室内。複数路線利用可能の好立地・管理良好マンション・ペットと暮らせます。


  • 現地外観写真 -
  • 間取り図 -
  • エントランス オートロック
  • その他共用部 宅配ボックス
  • その他共用部 駐輪場
お問い合わせ、資料請求、見学のお申し込みはこちらから

電話をかける(携帯・PHS可)
0120-033-223
「ホームページを見た」とお伝え下さい。

お問い合わせ番号をお伝えください
RHS-c-26040

内見予約
お問合せ
内見予約・お問い合わせ

セールスポイント

設備・特徴
  • 仲介手数料無料
  • 1階部分
  • ペット飼育相談可
  • 新耐震基準適合物件
  • 事務所使用不可
  • 駐輪場
  • 宅配ボックス
  • 角部屋
  • オートロック
  • エレベーター
  • カウンターキッチン
  • 洗浄便座付トイレ
  • 室内洗濯機置場
  • フローリング
  • 洗面化粧台
物件のおすすめ
ポイント
*~*:,_,:*~*:,_,:*~*:,_,:*
…╋ オープンレジデンシア
      小石川三丁目 ╋…
*~*:,_,:*~*:,_,:*~*:,_,:*

.:*:…╋ 交通アクセス ╋…♪.:*:’ 

都営大江戸線「春日」駅徒歩10分
都営三田線「春日」駅徒歩10分
東京メトロ丸ノ内線「後楽園」駅徒歩11分
東京メトロ南北線「「後楽園」駅徒歩11分
都営三田線「白山」駅徒歩12分

.:*:…╋ 特徴・ポイント ╋…♪.:*:’゜

新耐震基準マンション
管理体制良好
オートロック完備
エレベーター完備
宅配ボックス完備
安心の内廊下設計
ペットと暮らせます
1階部分・角部屋
カウンターキッチン

所在地:東京都文京区小石川3-35-10
専有面積:63.22m2
バルコニー面積:11.92m2
部屋数・間取り:2LDK
築年月:平成26年9月
土地権利:所有権
構造:RC造地上9階建
所在階:1階部分
総戸数:20戸
管理会社:日本ハウズイング(株)
管理形態:全部委託(日勤)
管理費:15,424円/月
修繕積立金:13,780円/月
CATV設備使用料:540円/月
インターネット使用料:2,052円/月
町内会費:300円/月
分譲会社:(株)オープンハウス・ディベロップメント
施工会社:風越建設(株)
ペット飼育:可(規約有)
事務所利用:不可
駐輪場:有
現況:空室
引渡:相談

:*:…╋ 新規内装リフォーム内容 ╋…♪:*

フローリング一部補修
壁・天井全面張替
全室LED照明交換
ハウスクリーニング
※2025年4月29日完成

物件概要

採光面 東南 取引態様 仲介
現況 空家 引渡し 相談
総戸数 20戸 構造 RC造
テラス面積 - 専用庭面積 -
駐車場 なし 駐輪場
建物権利 区分所有 土地権利 所有権の共有
用途地域 準工業地域 - - 管理態様 管理形態:委託(通勤)
管理組合:あり
管理会社:日本ハウズイング
小学校区 柳町小学校
(東京都文京区)
この学区の他の物件を見る
中学校区 茗台中学校
(東京都文京区)
この学区の他の物件を見る
情報更新日 2025年10月25日 次回更新日 2025年11月08日
※各種情報と差異がある場合は現況優先となります
※物件情報の学区情報について
当サイト物件情報に記載されております通学区域(学区)情報は、国土数値情報ダウンロードサービスが提供する小学校区データ【2016年度】及び中学校区データ【2016年度】を元に加工したものですので、記載情報が現在の学区域と異なる場合がございます。
国土数値情報ダウンロードサービスのWEBサイト上で記述通り、データは必ずしも正確とは言えません。また、通学区域(学区)は毎年見直しの対象となりますので、そちらを踏まえ学区情報は参考としてご活用下さい。
お問い合わせ、資料請求、見学のお申し込みはこちらから

電話をかける(携帯・PHS可)
0120-033-223
「ホームページを見た」とお伝え下さい。

お問い合わせ番号をお伝えください
RHS-c-26040

内見予約
お問合せ
内見予約・お問い合わせ

この物件でローンシミュレーションする

年利率
ボーナス払い 返済年数
頭金 直接入力する 万円

毎月のご返済額

ボーナス(×年2回)

物件価格

成約済
※返済金額はあくまでも目安です。

電話でお問い合わせ
ゼロネクスト

電話をかける

0120-033-223

※「ホームページを見た」とお伝えください。
お問い合わせ番号をお伝えください
RHS-c-26040

お問い合わせ

お問い合わせ内容
お問合せ内容必須
【備考欄】
詳細な見学ご希望時間、ご質問、ご希望条件などがございましたらお聞かせ下さい。
(2000文字以内)
お客様情報
お名前必須
連絡先必須 メールアドレス

※ご記入いただいたメールアドレス宛てに、お問合せ内容の確認メールをお送りいたします。
※Yahoo!メールなどのフリーメールをご利用の場合、迷惑メールフォルダに入る場合があります。
 迷惑メールのフォルダ・設定等をご確認下さい。
電話番号
FAX(任意)
※ご入力いただいたお客さまの個人情報は、「個人情報のお取り扱いについて」に基づき適正に取り扱います。
必ずお読みになり、同意の上お問い合わせください。

お気軽にお問い合わせください

0120-033-223
物件番号 RHS-c-26040
※「ホームページを見た」
とお伝え下さい。

PAGE TOP

住まいネクスト株式会社 住まいネクスト株式会社ロゴ

〒143-0016

東京都 大田区大森北1-1-5 YK-16ビル 6F

JR京浜東北線「大森」駅北口出口から徒歩1分

※物件内覧の際は、現地でのお待ち合わせ・解散が可能です。
お電話でのお問い合わせはコチラ 03-6423-0433 営業時間 10:00〜20:30 定休日:水曜日・年末年始・夏季休暇

※ご案内中は電話に出られないこともございます。
   その際は折り返しお電話させて頂きます。